Продажа
120693 - Г. БАТАЙСК, УРИЦКОГО УЛИЦА, Д.7
Ростовская обл
Продается помещение свободного назначения, 1 этаж ТЦ "Астрасити", г. Батайск
Основная информация:
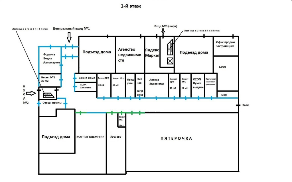
Общая площадь: 1 780,5 м2 (весь первый этаж торгового комплекса)
Адрес: Ростовская область, г. Батайск, ул. Урицкого, 7
Цена: 220 000 000 рублей
Расположение: Центральная часть города, фасад выходит на перекресто...
140 (+2)
Навигация
Характеристики помещения
№ объявления
120693
Дата размещения
08.11.2025
Город
Батайск
Адрес
Урицкого улица, д.7
Расположено
Этаж
1
Предлагается
Продажа
Желаемый / подходящий вид деятельности
Не указано
Назначение
Не указано
Размер площади (м2)
1780
Цена за помещение
220 000 000 руб.
О помещении
Продается помещение свободного назначения, 1 этаж ТЦ "Астрасити", г. Батайск
Основная информация:
Общая площадь: 1 780,5 м2 (весь первый этаж торгового комплекса)
Адрес: Ростовская область, г. Батайск, ул. Урицкого, 7
Цена: 220 000 000 рублей
Расположение: Центральная часть города, фасад выходит на перекресток ул. Энгельса и ул. Урицкого.
О здании:
Трехэтажный торговый комплекс, входящий в состав МКД (236 квартир).
Продается полностью весь первый этаж.
Высокий автомобильный и пешеходный трафик.
Отличный рекламный обзор и хорошо просматриваемый фасад.
Имеется возможность размещения рекламной вывески.
Несколько входов в торговый комплекс.
Размещена зона разгрузки.
Коммуникации и системы:
Система центрального кондиционирования.
Пожарная сигнализация.
Инвестиционная привлекательность и арендаторы:
Помещение полностью сдается в аренду, что обеспечивает стабильный денежный поток. Возможна продажа с передачей права аренды действующим арендаторам.
Якорные арендаторы:
Пятерочка (магазин у дома)
Магнит Косметик (парфюмерия и косметика)
Фортуна (алкогольная продукция)
Прочие арендаторы:
Аптека низких цен
Химчистка "Аква"
Зоомагазин "Зоозавр"
"Пенная заправка" (разливное пиво)
Пункт выдачи заказов Ozon
Прачечная самообслуживания
Торговые аппараты (вендинг)[#7579558#]
Основная информация:
Общая площадь: 1 780,5 м2 (весь первый этаж торгового комплекса)
Адрес: Ростовская область, г. Батайск, ул. Урицкого, 7
Цена: 220 000 000 рублей
Расположение: Центральная часть города, фасад выходит на перекресток ул. Энгельса и ул. Урицкого.
О здании:
Трехэтажный торговый комплекс, входящий в состав МКД (236 квартир).
Продается полностью весь первый этаж.
Высокий автомобильный и пешеходный трафик.
Отличный рекламный обзор и хорошо просматриваемый фасад.
Имеется возможность размещения рекламной вывески.
Несколько входов в торговый комплекс.
Размещена зона разгрузки.
Коммуникации и системы:
Система центрального кондиционирования.
Пожарная сигнализация.
Инвестиционная привлекательность и арендаторы:
Помещение полностью сдается в аренду, что обеспечивает стабильный денежный поток. Возможна продажа с передачей права аренды действующим арендаторам.
Якорные арендаторы:
Пятерочка (магазин у дома)
Магнит Косметик (парфюмерия и косметика)
Фортуна (алкогольная продукция)
Прочие арендаторы:
Аптека низких цен
Химчистка "Аква"
Зоомагазин "Зоозавр"
"Пенная заправка" (разливное пиво)
Пункт выдачи заказов Ozon
Прачечная самообслуживания
Торговые аппараты (вендинг)[#7579558#]
Где находится
Контакты
Имя
Оксана
Телефон
+79331096152
E-mail
oksssa3@yandex.ru
Под параметры Вашего помещения подходит 2 ритейлера
Вид деятельности: Книги и печатные издания
Ценовая категория:
- Средний
Площадь искомых помещений:
от 50 до 3000 м²
Города присутствия:
Батайск и ещё 6
Объявления из этого региона
Новости и пресса
21.04.2026
Российский ритейл окончательно перешел в фазу жесткой оптимизации издержек
По данным аналитики компании «ЛазерСтиль», на смену классическому премиуму приходит феномен «умного премиума» (Smart Premium), а основным инструментом выживания среднего и малого бизнеса становится модульное торговое оборудование [...]







