Продажа
Отдельно стоящее здание
120439 - Г. САНКТ-ПЕТЕРБУРГ, МОСКОВСКОЕ ШОССЕ, Д.179К2 СТР 1
Адыгея г
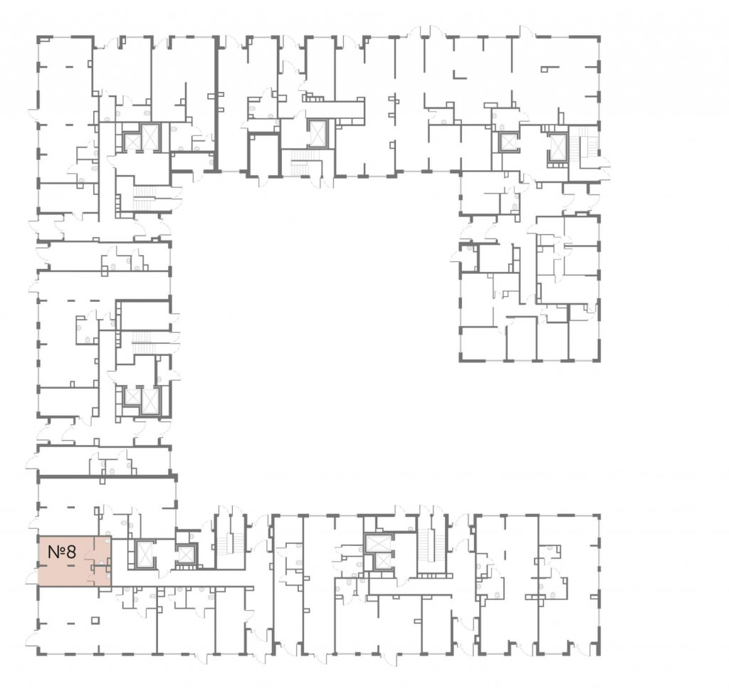
Продается помещение свободного назначения в UP-квартале «Новый Московский». Прямая продажа от застройщика.
UP-квартал «Новый Московский» - масштабный проект на Московском шоссе в Пушкинском районе Петербурга. Комплекс состоит из 10 корпусов по 10 этажей - на 3 200 квартир. В рамках проекта комплексного разви...
158 (+2)
Навигация
Характеристики помещения
№ объявления
120439
Дата размещения
02.12.2025
Город
Санкт-Петербург
Адрес
Московское шоссе, д.179к2 стр 1
Расположено
Отдельно стоящее здание
Этаж
1
Предлагается
Продажа
Желаемый / подходящий вид деятельности
Не указано
Назначение
Не указано
Размер площади (м2)
38.4
Цена за помещение
10 621 303 руб.
О помещении
Продается помещение свободного назначения в UP-квартале «Новый Московский». Прямая продажа от застройщика.
UP-квартал «Новый Московский» - масштабный проект на Московском шоссе в Пушкинском районе Петербурга. Комплекс состоит из 10 корпусов по 10 этажей - на 3 200 квартир. В рамках проекта комплексного развития территории возводится социальная инфраструктура, позволяющая жителям ЖК больше времени проводить рядом с домом. Это увеличивает бизнес-потенциал коммерческих помещений, расположенных на первых этажах ЖК.[#7533487#]
UP-квартал «Новый Московский» - масштабный проект на Московском шоссе в Пушкинском районе Петербурга. Комплекс состоит из 10 корпусов по 10 этажей - на 3 200 квартир. В рамках проекта комплексного развития территории возводится социальная инфраструктура, позволяющая жителям ЖК больше времени проводить рядом с домом. Это увеличивает бизнес-потенциал коммерческих помещений, расположенных на первых этажах ЖК.[#7533487#]
Где находится
Контакты
Имя
Отдел продаж
Телефон
+78122141329
E-mail
landing@fsknw.ru
В радиусе 100 км от Вашего помещения найдено 163 ритейлера
Точных совпадений по городу не найдено, показаны ритейлеры из ближайших городов
Вид деятельности: Продукты питания
Ценовая категория:
- Средний
Площадь искомых помещений:
от 15 до 40 м²
Города присутствия:
Санкт-Петербург (~0 км) и ещё 4
Объявления из этого региона
Новости и пресса
18.03.2026
К концу 2026 года доля вакантных площадей в ТЦ Москвы вырастет до 11%
По данным IBC Real Estate, по состоянию на март нынешнего года показатель уже достиг 10% [...]







