Продажа
Жилой дом
94008 - Г. МЫТИЩИ, НОВОМЫТИЩИНСКИЙ ПРОСПЕКТ, Д.2Б
Москва / Московская обл
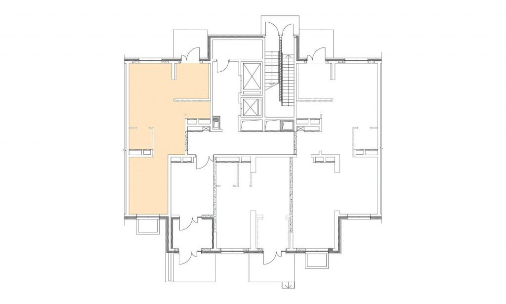
Продается помещение площадью 109.01 м2 м. Медведково, в 4 км. от МКАД. Помещение располагается в 25-этажном, находится на 1 этаже здания.
Жилой комплекс «КИТ» - идеальное место для старта и развития вашего бизнеса. На первых этажах жилых корпусов будут располагаться коммерческие помещения, в которых вы сможе...
785 (+3)
Навигация
Характеристики помещения
№ объявления
94008
Дата размещения
18.03.2022
Город
Мытищи
Адрес
Новомытищинский проспект, д.2Б
Расположено
Жилой дом
Этаж
1
Предлагается
Продажа
Желаемый / подходящий вид деятельности
Не указано
Назначение
Не указано
Размер площади (м2)
109
Цена за помещение
27 797 550 руб.
О помещении
Продается помещение площадью 109.01 м2 м. Медведково, в 4 км. от МКАД. Помещение располагается в 25-этажном, находится на 1 этаже здания.
Жилой комплекс «КИТ» - идеальное место для старта и развития вашего бизнеса. На первых этажах жилых корпусов будут располагаться коммерческие помещения, в которых вы сможете открыть продуктовый магазин, салон красоты, кофейню, медицинский центр, ателье или винотеку. Прекрасное расположение в самом центре города и высокий пешеходный трафик позволят использовать помещения с максимальной выгодой.
Основные преимущества коммерческих помещений в жилом комплексе «КИТ»:
Расположение на первом этаже
Отдельный вход (без пересечения с дворовой территорией)
Панорамные витринные окна
Свободная планировка, под отделку
Современная инженерия
Электрическая мощность 0,2 кВт на м2[#3512534#]
Жилой комплекс «КИТ» - идеальное место для старта и развития вашего бизнеса. На первых этажах жилых корпусов будут располагаться коммерческие помещения, в которых вы сможете открыть продуктовый магазин, салон красоты, кофейню, медицинский центр, ателье или винотеку. Прекрасное расположение в самом центре города и высокий пешеходный трафик позволят использовать помещения с максимальной выгодой.
Основные преимущества коммерческих помещений в жилом комплексе «КИТ»:
Расположение на первом этаже
Отдельный вход (без пересечения с дворовой территорией)
Панорамные витринные окна
Свободная планировка, под отделку
Современная инженерия
Электрическая мощность 0,2 кВт на м2[#3512534#]
Где находится
Контакты
Имя
Отдел продаж
Телефон
+74950230793
E-mail
zakaz@redkit.sk
Под параметры Вашего помещения подходит 89 ритейлеров
Вид деятельности: Ювелирные магазины
Ценовая категория:
- Люкс / Премиум
Площадь искомых помещений:
от 40 до 130 м²
Города присутствия:
Мытищи и ещё 5
Объявления из этого региона
Новости и пресса
29.04.2026
В ЦДМ на Лубянке появился «НеДетский» гастропроект
Фуд-холл площадью 2,1 тыс кв. метров рассчитан на 630 посадочных мест. Он объединил 30 резидентов с разными концепциями и кухнями мира [...]





