Аренда
Бизнес центр
124064 - Г. МОСКВА, ПОДСОСЕНСКИЙ ПЕРЕУЛОК, Д.23СТР2
Москва / Московская обл
СОБСТВЕННИК предлагает в АРЕНДУ помещение общей площадью 289,7 м2.
Помещение находится на территории Бизнес комплекса в 5 минутах ходьбы от м. Курская, Чкаловская на огороженной, охраняемой территории со своей столовой/кафе, типографией, кальянной, клиникой косметологии и другими достойными арендаторами.
Поме...
7 (+1)
Навигация
Характеристики помещения
№ объявления
124064
Дата размещения
17.04.2026
Город
Москва
Адрес
Подсосенский переулок, д.23стр2
Расположено
Бизнес центр
Этаж
2
Предлагается
Аренда
Желаемый / подходящий вид деятельности
Не указано
Назначение
Не указано
Размер площади (м2)
289.7
Цена за помещение
1 200 000 руб.
Цена за 1 кв. м
4 143 руб.
О помещении
СОБСТВЕННИК предлагает в АРЕНДУ помещение общей площадью 289,7 м2.
Помещение находится на территории Бизнес комплекса в 5 минутах ходьбы от м. Курская, Чкаловская на огороженной, охраняемой территории со своей столовой/кафе, типографией, кальянной, клиникой косметологии и другими достойными арендаторами.
Помещение находится на 2-м этаже, по периметру всего помещения достаточное кол-во окон и высокие потолки 3 м, за счет этого помещение достаточно светлое и комфортное и при желании возможно сделать любую перепланировку.
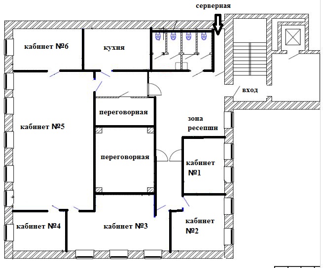
Планировка помещения на сегодняшний день: зона ресепшн, две переговорные, кухня (полностью оборудованная и со своим с/у), с/у, серверная, 6 кабинетов, возможно увеличение до 7.
Установлена система кондиционирования воздуха, пожарная сигнализация.
Предоставляется юридический адрес.
Звоните, оперативно покажем и обсудим варианты сотрудничества.[#8203567#]
Помещение находится на территории Бизнес комплекса в 5 минутах ходьбы от м. Курская, Чкаловская на огороженной, охраняемой территории со своей столовой/кафе, типографией, кальянной, клиникой косметологии и другими достойными арендаторами.
Помещение находится на 2-м этаже, по периметру всего помещения достаточное кол-во окон и высокие потолки 3 м, за счет этого помещение достаточно светлое и комфортное и при желании возможно сделать любую перепланировку.
Планировка помещения на сегодняшний день: зона ресепшн, две переговорные, кухня (полностью оборудованная и со своим с/у), с/у, серверная, 6 кабинетов, возможно увеличение до 7.
Установлена система кондиционирования воздуха, пожарная сигнализация.
Предоставляется юридический адрес.
Звоните, оперативно покажем и обсудим варианты сотрудничества.[#8203567#]
Где находится
Контакты
Имя
Татьяна, Елена
Телефон
+79587845118, +79820045625
E-mail
t.eliseeva@ukt.su
Под параметры Вашего помещения подходит 228 ритейлеров
Вид деятельности: Продукты питания
Ценовая категория:
- Дисконт
- Ниже среднего
Площадь искомых помещений:
от 250 до 1500 м²
Города присутствия:
Москва и ещё 143
Объявления из этого региона
Новости и пресса
26.03.2026
Отложенный спрос и сезонный фактор вернут покупателей в аутлеты
В Fashion House Group (аутлет-центры в Подмосковье и Санкт-Петербурге), в помесячной динамике фиксируют рост трафика, что указывает на начало восстановления покупательской активности [...]






