Продажа
122455 - Г. МОСКВА, ПЯТНИЦКОЕ ШОССЕ, Д.43К2
Москва / Московская обл
Реализация через торги
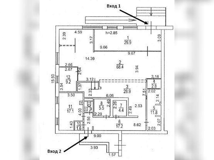
Продаётся помещение свободного коммерческого назначения общей площадью 199 м с кадастровым номером 77: 08: 0002014: 2070. Помещение находится в хорошем состоянии благодаря качественной офисной отделке. Оно располагается на первом этаже, что делает его удобным для ведения бизнеса. Однако...
6 (+6)
Навигация
Характеристики помещения
№ объявления
122455
Дата размещения
13.01.2026
Город
Москва
Адрес
Пятницкое шоссе, д.43к2
Расположено
Этаж
1
Предлагается
Продажа
Желаемый / подходящий вид деятельности
Не указано
Назначение
Не указано
Размер площади (м2)
199
Цена за помещение
46 457 000 руб.
О помещении
Реализация через торги
Продаётся помещение свободного коммерческого назначения общей площадью 199 м с кадастровым номером 77: 08: 0002014: 2070. Помещение находится в хорошем состоянии благодаря качественной офисной отделке. Оно располагается на первом этаже, что делает его удобным для ведения бизнеса. Однако стоит отметить, что бизнес, связанный с данным помещением, в настоящее время не функционирует. Этот объект идеально подойдёт для тех, кто ищет помещение для открытия своего дела или расширения уже существующего бизнеса. Возможности для развития здесь практически безграничны, а статус объекта "в эксплуатации" позволяет сразу же приступить к работе после приобретения. Не упустите шанс стать владельцем привлекательного коммерческого помещения с отличной локацией и перспективами роста![#7955528#]
Продаётся помещение свободного коммерческого назначения общей площадью 199 м с кадастровым номером 77: 08: 0002014: 2070. Помещение находится в хорошем состоянии благодаря качественной офисной отделке. Оно располагается на первом этаже, что делает его удобным для ведения бизнеса. Однако стоит отметить, что бизнес, связанный с данным помещением, в настоящее время не функционирует. Этот объект идеально подойдёт для тех, кто ищет помещение для открытия своего дела или расширения уже существующего бизнеса. Возможности для развития здесь практически безграничны, а статус объекта "в эксплуатации" позволяет сразу же приступить к работе после приобретения. Не упустите шанс стать владельцем привлекательного коммерческого помещения с отличной локацией и перспективами роста![#7955528#]
Где находится
Контакты
Имя
Платонова Елена Николаевна
Телефон
+79330193662
E-mail
enplatonova@ssberbank.ru
Объявления из этого региона
Новости и пресса
02.12.2025
В торговой галерее МФК «Дом Chkalov» не будет привычного формата фуд-корта
В столичном многофункциональном комплексе откроется «ГастроЦех», который объединит 13 гастрономических направлений [...]




