Продажа
Отдельно стоящее здание
115371 - Г. ВСЕВОЛОЖСК, МУРИНО, ОБОРОННАЯ УЛИЦА, Д.2К5
Ленинградская обл
Продается помещение свободного назначения в UP-квартале «Воронцовский». Прямая продажа от застройщика.
Квартал «Воронцовский» - жилой комплекс класса комфорт+ в Новом Девяткино. В составе комплекса: 3 корпуса по 12 этажей - на 1 900 квартир. Комплекс расположен в обжитом районе по соседству с уже заселенными...
692 (+2)
Навигация
Характеристики помещения
№ объявления
115371
Дата размещения
25.05.2026
Город
Всеволожск
Адрес
Мурино, Оборонная улица, д.2к5
Расположено
Отдельно стоящее здание
Этаж
1
Предлагается
Продажа
Желаемый / подходящий вид деятельности
Не указано
Назначение
Не указано
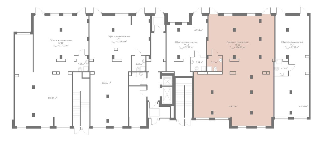
Размер площади (м2)
194.2
Цена за помещение
36 943 922 руб.
О помещении
Продается помещение свободного назначения в UP-квартале «Воронцовский». Прямая продажа от застройщика.
Квартал «Воронцовский» - жилой комплекс класса комфорт+ в Новом Девяткино. В составе комплекса: 3 корпуса по 12 этажей - на 1 900 квартир. Комплекс расположен в обжитом районе по соседству с уже заселенными многоквартирными домами, что дополнительно увеличивает потенциальный пешеходный трафик.
Преимущества помещения:
- Безбарьерный вход на уровне земли
- Большие витринные окна
- Открытая планировка. Гибкие возможности кастомизации помещения под ваши задачи.
- Возможность объединения с соседними помещениями
- Высота потолков до 3,7
- Подведены все инженерные коммуникации
- Оптимальная мощность электроснабжения
- Возможность размещения рекламной вывески
- Место для установки кондиционеров[#6864247#]
Квартал «Воронцовский» - жилой комплекс класса комфорт+ в Новом Девяткино. В составе комплекса: 3 корпуса по 12 этажей - на 1 900 квартир. Комплекс расположен в обжитом районе по соседству с уже заселенными многоквартирными домами, что дополнительно увеличивает потенциальный пешеходный трафик.
Преимущества помещения:
- Безбарьерный вход на уровне земли
- Большие витринные окна
- Открытая планировка. Гибкие возможности кастомизации помещения под ваши задачи.
- Возможность объединения с соседними помещениями
- Высота потолков до 3,7
- Подведены все инженерные коммуникации
- Оптимальная мощность электроснабжения
- Возможность размещения рекламной вывески
- Место для установки кондиционеров[#6864247#]
Где находится
Контакты
Имя
Отдел продаж
Телефон
+78122141329
E-mail
landing@fsknw.ru
Под параметры Вашего помещения подходит 8 ритейлеров
Вид деятельности: Одежда
Ценовая категория:
- Дисконт
Площадь искомых помещений:
от 150 до 300 м²
Города присутствия:
Всеволожск и ещё 30
Объявления из этого региона
Новости и пресса
20.04.2026
Продажа Cofix станет одной из крупнейших сделок в сегменте кофеен
Российский бизнес сети бюджетных кофеен Cofix может сменить владельца. Эксперты рынка оценивают возможную сделку до 1,4 млрд рублей [...]






