Аренда
Торговый Центр
123639 - Г. СОЧИ, ДОНСКАЯ УЛИЦА, Д.10АК1
Краснодарский край
Сдаю в аренду помещения с ремонтом в центре Сочи, у дороги
Расположение: ул. Донская, д. 10Ак1
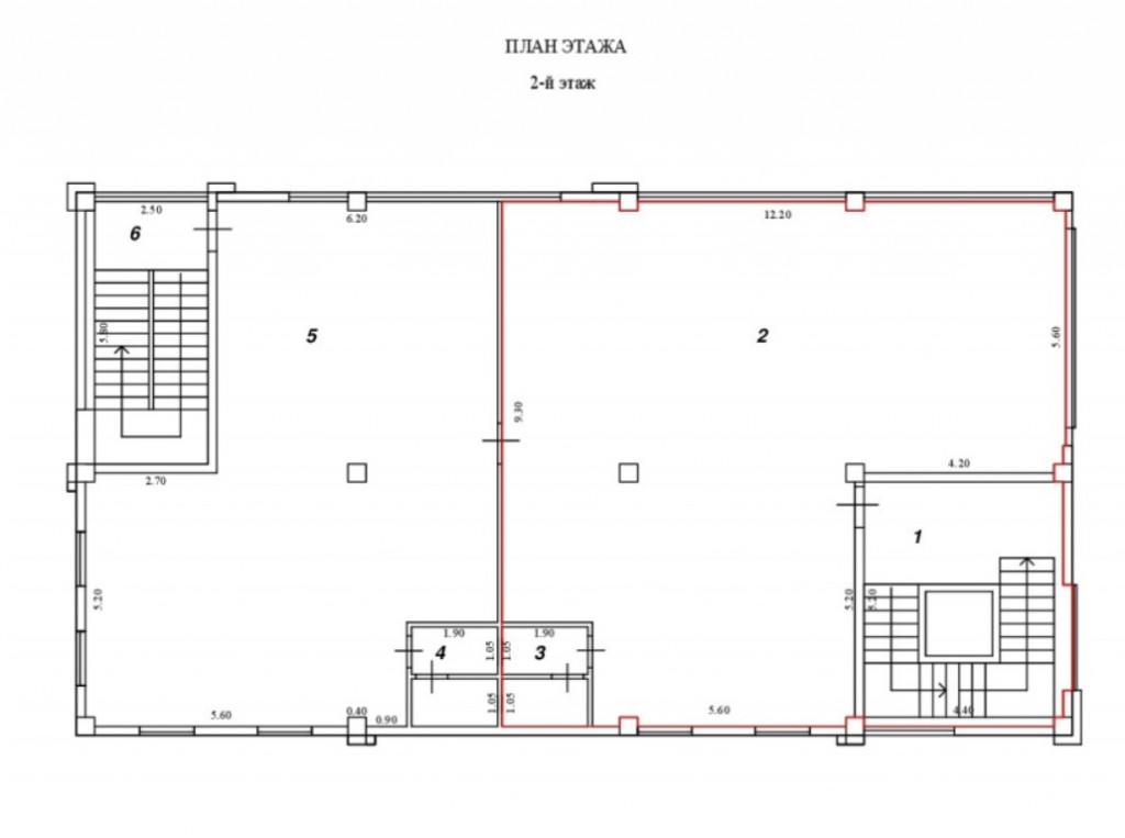
- площадь помещений 2-го этажа: 205,9 м2;
- возможен раздел на два помещения: 102,95 м2 и 102,95 м2;
- высота потолков составляет 3,53 метра, из них 30 сантиметров ригель;
- отделка - под магазин;
- первая линия...
8 (+1)
Навигация
Характеристики помещения
№ объявления
123639
Дата размещения
15.03.2026
Город
Сочи
Адрес
Донская улица, д.10Ак1
Расположено
Торговый Центр
Этаж
2
Предлагается
Аренда
Желаемый / подходящий вид деятельности
Не указано
Назначение
Не указано
Размер площади (м2)
205.9
Цена за помещение
308 850 руб.
Цена за 1 кв. м
1 500 руб.
О помещении
Сдаю в аренду помещения с ремонтом в центре Сочи, у дороги
Расположение: ул. Донская, д. 10Ак1
- площадь помещений 2-го этажа: 205,9 м2;
- возможен раздел на два помещения: 102,95 м2 и 102,95 м2;
- высота потолков составляет 3,53 метра, из них 30 сантиметров ригель;
- отделка - под магазин;
- первая линия от дороги с интенсивным автомобильным и пешеходным потоком;
- электроснабжение мощностью 150 кВт
- возможность разместить яркую вывеску на здании, которую будет видно с дублера;
- панорамные окна, обеспечивающие естественный свет, создают приятную атмосферу для работы и встреч с клиентами
- правильная и функциональная форма помещений делают планировки практичными — легко адаптировать под любые задачи
- в 30 метрах от здания расположена остановка общественного транспорта
Рассмотрим концепции, кроме классического продуктового, электротехнического, сантехнического, стройматериалов: обои, плитка.
Возможно размещение:
- мебельный салон;
- студия танцев;
- профильный рыбный, мясной и прочее;
- офис компании;
- обучающие компании;
- развивайки, детские;
- медицина без лицензии;
- косметология и прочее.
Рассмотрим Вашу концепцию.
Первый этаж уже сдан в аренду компании "Ситилинк"
Стоимость аренды за 2-й этаж площадью 205,9 кв.м составляет: 308 850 руб.
Можно арендовать половину второго этажа.
Покажу помещения в любое время
Звоните/пишите.[#8117555#]
Расположение: ул. Донская, д. 10Ак1
- площадь помещений 2-го этажа: 205,9 м2;
- возможен раздел на два помещения: 102,95 м2 и 102,95 м2;
- высота потолков составляет 3,53 метра, из них 30 сантиметров ригель;
- отделка - под магазин;
- первая линия от дороги с интенсивным автомобильным и пешеходным потоком;
- электроснабжение мощностью 150 кВт
- возможность разместить яркую вывеску на здании, которую будет видно с дублера;
- панорамные окна, обеспечивающие естественный свет, создают приятную атмосферу для работы и встреч с клиентами
- правильная и функциональная форма помещений делают планировки практичными — легко адаптировать под любые задачи
- в 30 метрах от здания расположена остановка общественного транспорта
Рассмотрим концепции, кроме классического продуктового, электротехнического, сантехнического, стройматериалов: обои, плитка.
Возможно размещение:
- мебельный салон;
- студия танцев;
- профильный рыбный, мясной и прочее;
- офис компании;
- обучающие компании;
- развивайки, детские;
- медицина без лицензии;
- косметология и прочее.
Рассмотрим Вашу концепцию.
Первый этаж уже сдан в аренду компании "Ситилинк"
Стоимость аренды за 2-й этаж площадью 205,9 кв.м составляет: 308 850 руб.
Можно арендовать половину второго этажа.
Покажу помещения в любое время
Звоните/пишите.[#8117555#]
Где находится
Контакты
Имя
Карен
Телефон
+79584816325
E-mail
arenda-sochi-centr@mail.ru
Под параметры Вашего помещения подходит 82 ритейлера
Вид деятельности: Кафе, ресторан
Ценовая категория:
- Средний
Площадь искомых помещений:
от 50 до 350 м²
Города присутствия:
Сочи и ещё 53
Объявления из этого региона
Новости и пресса
10.02.2026
«Вятская меховая компания» завершает деятельность после более 30 лет на рынке
10 февраля 2026 года в Кирове закрывается последний розничный магазин, работающий в городе с 1993 года [...]







