Аренда
Отдельно стоящее здание
120221 - Г. САРАТОВ, ПОСЕЛОК ПРОБУЖДЕНИЕ, ЖИЛОЙ АТХ КВАРТАЛ, Д.48 Б
Саратовская обл
Сдается помещение под столовую, площадью 200 м2 в 2-этажном отдельно стоящем здании, п. Пробуждение. Помещение располагается на 1 и 2 этаже, предоставляется в прямую аренду на срок свыше года, предоплата 1 месяц, предоставляется юридический адрес.
Минимальный срок аренды 11 мес, возможное назначение помещени...
136 (+2)
Навигация
Характеристики помещения
№ объявления
120221
Дата размещения
01.10.2025
Город
Саратов
Адрес
поселок Пробуждение, Жилой АТХ квартал, д.48 б
Расположено
Отдельно стоящее здание
Этаж
1
Предлагается
Аренда
Желаемый / подходящий вид деятельности
Не указано
Назначение
Не указано
Размер площади (м2)
200
Цена за помещение
80 000 руб.
Цена за 1 кв. м
400 руб.
О помещении
Сдается помещение под столовую, площадью 200 м2 в 2-этажном отдельно стоящем здании, п. Пробуждение. Помещение располагается на 1 и 2 этаже, предоставляется в прямую аренду на срок свыше года, предоплата 1 месяц, предоставляется юридический адрес.
Минимальный срок аренды 11 мес, возможное назначение помещения - столовая, помещение требует ремонта.
На время ремонта арендатору предоставляются арендные каникулы.
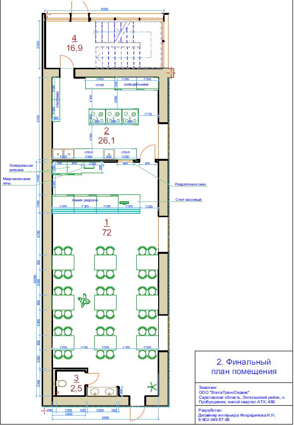
Есть планировка первого этажа, второй этаж можно использовать для банкетного зала.
Вход в помещение общий с улицы.
Парковка автомобилей - наземная, парковка предоставляется бесплатно. Парковка на 20 машиномест, есть гостевые места.
Благодарные клиенты очень ждут когда Вы придете и начнете их кормить вкусными завтраками, обедами и ужинами.
Звоните и приезжайте на показ.[#7338887#]
Минимальный срок аренды 11 мес, возможное назначение помещения - столовая, помещение требует ремонта.
На время ремонта арендатору предоставляются арендные каникулы.
Есть планировка первого этажа, второй этаж можно использовать для банкетного зала.
Вход в помещение общий с улицы.
Парковка автомобилей - наземная, парковка предоставляется бесплатно. Парковка на 20 машиномест, есть гостевые места.
Благодарные клиенты очень ждут когда Вы придете и начнете их кормить вкусными завтраками, обедами и ужинами.
Звоните и приезжайте на показ.[#7338887#]
Где находится
Контакты
Имя
ООО "ВТС"
Телефон
+79016392275, +79271263613
E-mail
v.gorelik@vts64.ru
Под параметры Вашего помещения подходит 81 ритейлер
Вид деятельности: Оптика
Ценовая категория:
- Средний
Площадь искомых помещений:
от 30 до 350 м²
Города присутствия:
Саратов и ещё 1
Объявления из этого региона
Новости и пресса
08.04.2026
Столичный ТРЦ «Тройка» купили
АО «Концерн «Энерготехнологии» закрыло сделку по покупке ТРЦ площадью порядка 152 тыс кв. метров в центре Москвы [...]



