Аренда
Жилой дом
123683 - Г. САНКТ-ПЕТЕРБУРГ, ЛЫЖНЫЙ ПЕРЕУЛОК, Д.2
Адыгея г
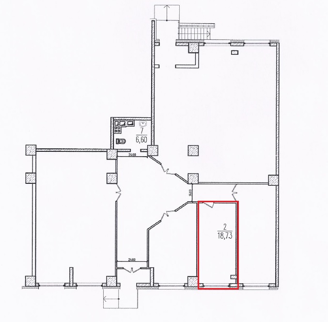
Предлагаем в аренду помещение стрит-ритейл площадью 18.73 м2, в прямую аренду, с предоплатой за 1 месяц. Минимальный срок аренды 11 мес. Помещение располагается в 25-этажном жилом доме в 10 мин. пешком от м. Беговая в Приморском районе Санкт-Петербурга.
Помещение располагается на 1 этаже здания. Помещение с...
89 (+1)
Навигация
Характеристики помещения
№ объявления
123683
Дата размещения
20.04.2026
Город
Санкт-Петербург
Адрес
Лыжный переулок, д.2
Расположено
Жилой дом
Этаж
1
Предлагается
Аренда
Желаемый / подходящий вид деятельности
Не указано
Назначение
Не указано
Размер площади (м2)
18.7
Цена за помещение
46 825 руб.
Цена за 1 кв. м
2 500 руб.
О помещении
Предлагаем в аренду помещение стрит-ритейл площадью 18.73 м2, в прямую аренду, с предоплатой за 1 месяц. Минимальный срок аренды 11 мес. Помещение располагается в 25-этажном жилом доме в 10 мин. пешком от м. Беговая в Приморском районе Санкт-Петербурга.
Помещение располагается на 1 этаже здания. Помещение свободно после 1 июня 2026 года.
Возможное назначение помещения - торговое, высота потолков 4.02 м, внутри типовой ремонт, на полу плитка, тип окон - витринные, окна выходят на улицу. Здание построено в 2012 году.
Внутри местное кондиционирование, вентиляция - естественная, центральное отопление, гидрантная система пожаротушения.
Доступ в здание свободный. Вход в помещение - общий с улицы. Инфраструктура: аптека, супермаркет, товары из Японии, школа.[#8128409#]
Помещение располагается на 1 этаже здания. Помещение свободно после 1 июня 2026 года.
Возможное назначение помещения - торговое, высота потолков 4.02 м, внутри типовой ремонт, на полу плитка, тип окон - витринные, окна выходят на улицу. Здание построено в 2012 году.
Внутри местное кондиционирование, вентиляция - естественная, центральное отопление, гидрантная система пожаротушения.
Доступ в здание свободный. Вход в помещение - общий с улицы. Инфраструктура: аптека, супермаркет, товары из Японии, школа.[#8128409#]
Где находится
Контакты
Имя
Отдел аренды
Телефон
+79587734634
E-mail
sk@sktemp.ru
В радиусе 100 км от Вашего помещения найдено 88 ритейлеров
Точных совпадений по городу не найдено, показаны ритейлеры из ближайших городов
Вид деятельности: Продукты питания
Ценовая категория:
- Средний
Площадь искомых помещений:
от 15 до 40 м²
Города присутствия:
Санкт-Петербург (~0 км) и ещё 4
Объявления из этого региона
Новости и пресса
07.04.2026
Рынок торговой недвижимости смещается в Новую Москву
По данным ГК «А101» и CORE.XP, ключевым фактором развития столичного округа выступает не только масштабное развитие территорий, но и сформированная платежеспособная аудитория [...]


