Аренда
Жилой дом
122731 - Г. МОСКВА, ВНУКОВО РАЙОН, САМУИЛА МАРШАКА УЛИЦА, Д.18
Москва / Московская обл
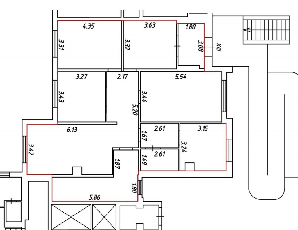
Помещение 123 м2 под студию массажа, коррекции фигуры или SPA.
После стоматологии - соответствует типовым требованиям к медицинским/SPA-помещениям.
5 кабинетов с мокрыми точками, ресепшен, первый этаж жилого ЖК.
Формат: заехать и запустить студию без капитального ремонта.
Помещение находится на первом этаже ж...
148 (+1)
Навигация
Характеристики помещения
№ объявления
122731
Дата размещения
25.02.2026
Город
Москва
Адрес
Внуково район, Самуила Маршака улица, д.18
Расположено
Жилой дом
Этаж
1
Предлагается
Аренда
Желаемый / подходящий вид деятельности
Не указано
Назначение
Не указано
Размер площади (м2)
123
Цена за помещение
307 500 руб.
Цена за 1 кв. м
2 500 руб.
О помещении
Помещение 123 м2 под студию массажа, коррекции фигуры или SPA.
После стоматологии - соответствует типовым требованиям к медицинским/SPA-помещениям.
5 кабинетов с мокрыми точками, ресепшен, первый этаж жилого ЖК.
Формат: заехать и запустить студию без капитального ремонта.
Помещение находится на первом этаже жилого дома в ЖК «Переделкино Ближнее» и по параметрам подходит под большинство франшиз массажных студий, SPA и салонов коррекции фигуры, стоматологию.
Что важно для франшизы — и уже есть в этом помещении:
- 5 отдельных кабинетов с мокрыми точками удобно для работы нескольких массажистов/специалистов одновременно.
- Зона ресепшен, кухня и санузел - готовая планировка для приёма клиентов и работы персонала.
- Первый этаж, отдельный вход со стороны ул. Самуила Маршака.
- Пандус и безбарьерный доступ — комфорт для клиентов любых возрастов и состояния здоровья.
- Электромощность 15 кВт для оборудования, освещения, вытяжки и сопутствующей техники.
- Высота потолков 2.8 м соответствует типовым требованиям к салонам и медкабинетам.
- Помещение после стоматологической клиники уже адаптировано под санитарные требования.
Локация:
Помещение расположено в современном жилом комплексе с высокой плотностью населения. Это удобно для формата работы по записи: клиенты живут рядом, легко доходят пешком и могут планировать регулярные визиты.
Форматы использования:
- Полная аренда: вся площадь под вашу франшизу или собственный бренд.
- Аренда с возможностью субаренды: часть кабинетов используете сами, остальные можете сдавать партнёрам (массаж, косметология, смежные услуги), снижая свою нагрузку по аренде.
Условия аренды:
- Ставка: 2 500 за м2 (ниже среднерыночной по району).
- Обеспечительный платёж: 1 месяц.
- Коммунальные платежи: отдельно.
- Арендные каникулы: 1 неделя на заезд и организацию пространства под стандарты бренда.
Помещение свободно и готово к показу. Мебель можно выкупить отдельно полностью или частями. Шкафы, оборудование, столы и т.д.
Позвоните или напишите, чтобы договориться о просмотре, и добавьте объявление в «Избранное», чтобы не потерять.[#8011378#]
После стоматологии - соответствует типовым требованиям к медицинским/SPA-помещениям.
5 кабинетов с мокрыми точками, ресепшен, первый этаж жилого ЖК.
Формат: заехать и запустить студию без капитального ремонта.
Помещение находится на первом этаже жилого дома в ЖК «Переделкино Ближнее» и по параметрам подходит под большинство франшиз массажных студий, SPA и салонов коррекции фигуры, стоматологию.
Что важно для франшизы — и уже есть в этом помещении:
- 5 отдельных кабинетов с мокрыми точками удобно для работы нескольких массажистов/специалистов одновременно.
- Зона ресепшен, кухня и санузел - готовая планировка для приёма клиентов и работы персонала.
- Первый этаж, отдельный вход со стороны ул. Самуила Маршака.
- Пандус и безбарьерный доступ — комфорт для клиентов любых возрастов и состояния здоровья.
- Электромощность 15 кВт для оборудования, освещения, вытяжки и сопутствующей техники.
- Высота потолков 2.8 м соответствует типовым требованиям к салонам и медкабинетам.
- Помещение после стоматологической клиники уже адаптировано под санитарные требования.
Локация:
Помещение расположено в современном жилом комплексе с высокой плотностью населения. Это удобно для формата работы по записи: клиенты живут рядом, легко доходят пешком и могут планировать регулярные визиты.
Форматы использования:
- Полная аренда: вся площадь под вашу франшизу или собственный бренд.
- Аренда с возможностью субаренды: часть кабинетов используете сами, остальные можете сдавать партнёрам (массаж, косметология, смежные услуги), снижая свою нагрузку по аренде.
Условия аренды:
- Ставка: 2 500 за м2 (ниже среднерыночной по району).
- Обеспечительный платёж: 1 месяц.
- Коммунальные платежи: отдельно.
- Арендные каникулы: 1 неделя на заезд и организацию пространства под стандарты бренда.
Помещение свободно и готово к показу. Мебель можно выкупить отдельно полностью или частями. Шкафы, оборудование, столы и т.д.
Позвоните или напишите, чтобы договориться о просмотре, и добавьте объявление в «Избранное», чтобы не потерять.[#8011378#]
Где находится
Контакты
Имя
Марина
Телефон
+79853237560
E-mail
marinam-nt@ya.ru
Под параметры Вашего помещения подходит 343 ритейлера
Вид деятельности: Продукты питания
Ценовая категория:
- Средний
Площадь искомых помещений:
от 60 до 150 м²
Города присутствия:
Москва и ещё 32
Объявления из этого региона
Новости и пресса
13.04.2026
«М.Видео» может оптимизировать до 30% магазинов в 2026 году
Ритейлер сокращает офлайн-присутствие на фоне давления маркетплейсов и трансформации формата [...]





