Аренда
123061 - Г. МОСКВА, СТАРОКАЧАЛОВСКАЯ УЛИЦА, Д.1К1
Москва / Московская обл
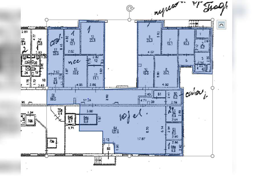
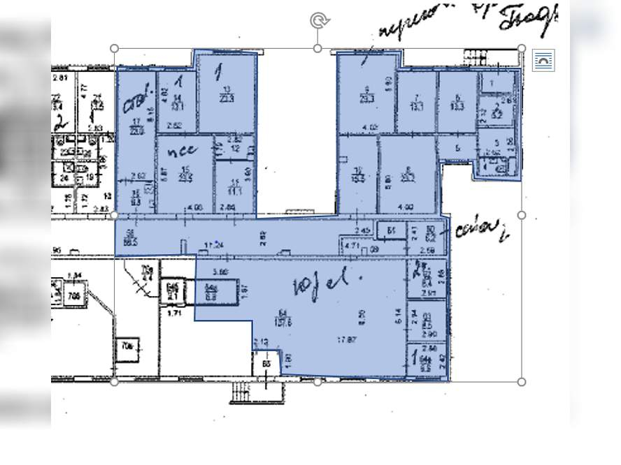
Предлагаем к аренде просторную коммерческую недвижимость общей площадью **406.1 м** на первом этаже жилого дома высотой **17 этажей**, расположенного на первой линии от дороги. Пространство обладает удобной функциональной планировкой, высокими потолками - **3 метра**, обеспечивает комфортные условия для веден...
136 (+)
Навигация
Характеристики помещения
№ объявления
123061
Дата размещения
10.04.2026
Город
Москва
Адрес
Старокачаловская улица, д.1к1
Расположено
Этаж
1
Предлагается
Аренда
Желаемый / подходящий вид деятельности
Не указано
Назначение
Не указано
Размер площади (м2)
406.1
Цена за помещение
974 640 руб.
Цена за 1 кв. м
2 400 руб.
О помещении
Предлагаем к аренде просторную коммерческую недвижимость общей площадью **406.1 м** на первом этаже жилого дома высотой **17 этажей**, расположенного на первой линии от дороги. Пространство обладает удобной функциональной планировкой, высокими потолками - **3 метра**, обеспечивает комфортные условия для ведения различных видов деятельности. Помещение оснащено всеми необходимыми коммуникациями: централизованное теплоснабжение, водоснабжение и канализация, подведена электроэнергия мощностью **16 кВт**. Отделка выполнена в стиле офиса, что позволяет сразу приступить к работе после приобретения объекта. Просторный холл с отдельным уличным входом создает дополнительное удобство для посетителей и сотрудников. Отличительной особенностью является возможность организовать несколько рабочих зон благодаря большой площади и свободной планировке. Объект идеально подойдет для размещения офисов, центров обслуживания клиентов, медицинских учреждений или иных коммерческих предприятий, нуждающихся в представительском помещении с высокой проходимостью.
Реализация через торги.[#8058233#]
Реализация через торги.[#8058233#]
Где находится
Контакты
Имя
Платонова Елена Николаевна
Телефон
+79330193662
E-mail
enplatonova@ssberbank.ru
Под параметры Вашего помещения подходит 145 ритейлеров
Вид деятельности: Продукты питания
Ценовая категория:
- Дисконт
- Ниже среднего
Площадь искомых помещений:
от 250 до 1500 м²
Города присутствия:
Москва и ещё 143
Объявления из этого региона
Новости и пресса
29.04.2026
На карте Москвы становится больше «Белых точек»
В столичном ТЦ «Левел Причальный» открылся смайл-бар сети. Площадь клиники профилактической стоматологии составляет 130 кв. метров [...]







