Аренда
Жилой дом
121542 - Г. МОСКВА, НИЖНИЕ МНЁВНИКИ УЛИЦА, Д.16К4
Москва / Московская обл
Видовое помещение на первой фасадной линии, расположено в составе ЖК ОСТРОВ, квартал 2.
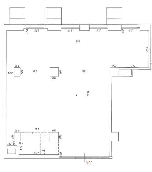
Площадь – 184 кв.м.
Помещение свободного назначения. Подходит под размещение медицинской клиники (под помещением нет машино-мест), продуктового магазина, кафе, кондитерской, салона красоты, отделения банка.
Расположен...
264 (+1)
Навигация
Характеристики помещения
№ объявления
121542
Дата размещения
14.05.2026
Город
Москва
Адрес
Нижние Мнёвники улица, д.16к4
Расположено
Жилой дом
Этаж
1
Предлагается
Аренда
Желаемый / подходящий вид деятельности
Не указано
Назначение
Не указано
Размер площади (м2)
184
Цена за помещение
1 200 000 руб.
Цена за 1 кв. м
6 522 руб.
О помещении
Видовое помещение на первой фасадной линии, расположено в составе ЖК ОСТРОВ, квартал 2.
Площадь – 184 кв.м.
Помещение свободного назначения. Подходит под размещение медицинской клиники (под помещением нет машино-мест), продуктового магазина, кафе, кондитерской, салона красоты, отделения банка.
Расположено в самом центре жилого комплекса. Стабильный пешеходный и автомобильный трафик.
Электрическая мощность 35,74 кВт. Без отделки. Предоставляются арендные каникулы.
Инженерные коммуникации: приточно-вытяжная общеобменная вентиляция и кондиционирование, смонтированы пожарная сигнализация, дымоудаление.
В шаговой доступности от станции метро Терехово.
Коммерческие условия:
Арендная плата – 1 200 000 руб в месяц. Коммунальные и эксплуатационные услуги оплачиваются дополнительно.
Возможность размещения вывески на фасаде, круглосуточный доступ.[#7688281#]
Площадь – 184 кв.м.
Помещение свободного назначения. Подходит под размещение медицинской клиники (под помещением нет машино-мест), продуктового магазина, кафе, кондитерской, салона красоты, отделения банка.
Расположено в самом центре жилого комплекса. Стабильный пешеходный и автомобильный трафик.
Электрическая мощность 35,74 кВт. Без отделки. Предоставляются арендные каникулы.
Инженерные коммуникации: приточно-вытяжная общеобменная вентиляция и кондиционирование, смонтированы пожарная сигнализация, дымоудаление.
В шаговой доступности от станции метро Терехово.
Коммерческие условия:
Арендная плата – 1 200 000 руб в месяц. Коммунальные и эксплуатационные услуги оплачиваются дополнительно.
Возможность размещения вывески на фасаде, круглосуточный доступ.[#7688281#]
Где находится
Контакты
Имя
Тарасова Ольга
Телефон
+74950854273
E-mail
Tarasova_OV@dsinv.ru
Под параметры Вашего помещения подходит 288 ритейлеров
Вид деятельности: Кафе, ресторан
Ценовая категория:
- Средний
Площадь искомых помещений:
от 150 до 250 м²
Города присутствия:
Москва
Объявления из этого региона
Новости и пресса
29.04.2026
«Дом Лента» (ex OBI) тестирует компактный формат магазинов для ремонта, дачи и сада
Первая торговая точка площадью 1,1 тыс кв. метров открылся на территории «Гипер Ленты» в Санкт-Петербурге, в поселке Шушары [...]





