Продажа
123667 - Г. МОСКВА, ИЛОВАЙСКАЯ УЛИЦА, Д.3/4А
Москва / Московская обл
Стрит-ритейл в новом ЖК «Страна. Заречная» в Москве от федерального застройщика «Страна Девелопмент». Проект расположен в пешей доступности от станции МЦД «Перерва». Район Марьино активно развивается: строятся новые жилые кварталы, социальные объекты и развивается комфортная городская среда с собственной инфр...
4 (+)
Навигация
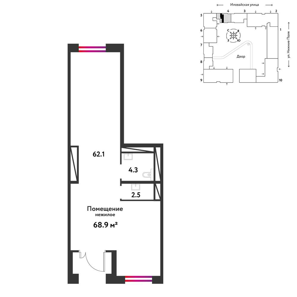
Характеристики помещения
№ объявления
123667
Дата размещения
12.03.2026
Город
Москва
Адрес
Иловайская улица, д.3/4а
Расположено
Этаж
1
Предлагается
Продажа
Желаемый / подходящий вид деятельности
Не указано
Назначение
Не указано
Размер площади (м2)
68.9
Цена за помещение
33 590 400 руб.
О помещении
Стрит-ритейл в новом ЖК «Страна. Заречная» в Москве от федерального застройщика «Страна Девелопмент». Проект расположен в пешей доступности от станции МЦД «Перерва». Район Марьино активно развивается: строятся новые жилые кварталы, социальные объекты и развивается комфортная городская среда с собственной инфраструктурой. Уже сейчас в пешей доступности - более 50 000 человек.
Преимущества
площади от 25 м
современные помещения на первой линии
витринное остекление и отдельные входы
прямой безбарьерный доступ с улицы
подойдут для кафе, магазинов, медцентров, салонов, ПВЗ и других форматов
сдача помещений - в 2028 году
Отделка
Помещения передаются в формате Shell&Core - их легко адаптировать под любой бизнес и учесть все детали: от планировки до дизайна. Часть работ застройщик уже выполнил: установлено витражное остекление, подведены коммуникации, подключена телеметрия - система автоматического учёта воды, электричества и отопления.
Способы покупки
100% оплата
ипотека
рассрочка[#8118717#]
Преимущества
площади от 25 м
современные помещения на первой линии
витринное остекление и отдельные входы
прямой безбарьерный доступ с улицы
подойдут для кафе, магазинов, медцентров, салонов, ПВЗ и других форматов
сдача помещений - в 2028 году
Отделка
Помещения передаются в формате Shell&Core - их легко адаптировать под любой бизнес и учесть все детали: от планировки до дизайна. Часть работ застройщик уже выполнил: установлено витражное остекление, подведены коммуникации, подключена телеметрия - система автоматического учёта воды, электричества и отопления.
Способы покупки
100% оплата
ипотека
рассрочка[#8118717#]
Где находится
Контакты
Имя
Отдел продаж
Телефон
+74950672944
E-mail
info@strana.ru
Под параметры Вашего помещения подходит 447 ритейлеров
Вид деятельности: Продукты питания
Ценовая категория:
- Средний
Площадь искомых помещений:
от 60 до 150 м²
Города присутствия:
Москва и ещё 13
Объявления из этого региона
Новости и пресса
12.02.2026
Pims пришла в «Место встречи»
Сеть заведений открыла первый корнер в столичном РЦ сети «Место встречи» [...]




