Аренда
Street retail
123623 - Г. НАБЕРЕЖНЫЕ ЧЕЛНЫ, ТАТАРСТАН, Г. НАБЕРЕЖНЫЕ ЧЕЛНЫ, САРМАНОВСКИЙ ТРАКТ, Д.56
Татарстан Респ
О помещении
Торговое помещение находится на первой линии на одном из оживленных проспектов города - на Сармановском тракте .
Это помещение идеально подходит для торговли и услуг благодаря высокому пешеходному и автомобильному трафику!
▎Основные характеристики:
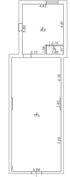
• Площадь: 105,5 кв. метров — достаточно простран...
16 (+2)
Навигация
Характеристики помещения
№ объявления
123623
Дата размещения
10.03.2026
Город
Набережные Челны
Адрес
Татарстан, г. Набережные Челны, Сармановский тракт, д.56
Расположено
Street retail
Этаж
1
Предлагается
Аренда
Желаемый / подходящий вид деятельности
Не указано
Назначение
Торговое
Размер площади (м2)
105
Цена за помещение
136 500 руб.
Цена за 1 кв. м
1 300 руб.
О помещении
О помещении
Торговое помещение находится на первой линии на одном из оживленных проспектов города - на Сармановском тракте .
Это помещение идеально подходит для торговли и услуг благодаря высокому пешеходному и автомобильному трафику!
▎Основные характеристики:
• Площадь: 105,5 кв. метров — достаточно пространства для реализации бизнес-идей в направлении розничной торговли .
• Высота потолков: 3,5 метра — создаёт ощущение простора и позволяет разместить различные конструкции. Ширина помещения 6 метров - удобно для размещения торговых горок в 4 ряда, наличие помещения под склад товаров со вторым входом со стороны двора для погрузки-разгрузки товаров.
• Централизованные коммуникации: водоснабжение ХВС и ГВС, канализация, санузел, трехфазное электроснабжение , отопление — всё необходимое для комфортной работы.
• Отдельная входная группа , витражное остекление и обширное место под рекламную вывеску на фасаде здания позволяют быть заметным с проспекта как пешеходам , так и с проезжающих автомобилей.
▎Удобства территории:
• Благоустроенная территория с широким тротуаром.
• Асфальтированные подъездные пути и парковка на 25 автомобилей — удобно как для клиентов, так и для сотрудников.
• В 50 метрах по обе стороны от объекта расположены остановки общественного транспорта, что обеспечивает дополнительный поток клиентов.
▎Соседство:
В непосредственной близости находятся:
• Сетевые продовольственные супермаркеты :Находка, Магнит, Монетка, ФиксПрайс, Коммерческие банки, Почта, Сетевые аптеки
• Пункты ПВЗ Озон, WB, Яндекс Маркет
• Различные сервисы обслуживания населения
Это очень хорошая локация для бизнеса, где уже сформирована активная клиентская база.
Торговое помещение находится на первой линии на одном из оживленных проспектов города - на Сармановском тракте .
Это помещение идеально подходит для торговли и услуг благодаря высокому пешеходному и автомобильному трафику!
▎Основные характеристики:
• Площадь: 105,5 кв. метров — достаточно пространства для реализации бизнес-идей в направлении розничной торговли .
• Высота потолков: 3,5 метра — создаёт ощущение простора и позволяет разместить различные конструкции. Ширина помещения 6 метров - удобно для размещения торговых горок в 4 ряда, наличие помещения под склад товаров со вторым входом со стороны двора для погрузки-разгрузки товаров.
• Централизованные коммуникации: водоснабжение ХВС и ГВС, канализация, санузел, трехфазное электроснабжение , отопление — всё необходимое для комфортной работы.
• Отдельная входная группа , витражное остекление и обширное место под рекламную вывеску на фасаде здания позволяют быть заметным с проспекта как пешеходам , так и с проезжающих автомобилей.
▎Удобства территории:
• Благоустроенная территория с широким тротуаром.
• Асфальтированные подъездные пути и парковка на 25 автомобилей — удобно как для клиентов, так и для сотрудников.
• В 50 метрах по обе стороны от объекта расположены остановки общественного транспорта, что обеспечивает дополнительный поток клиентов.
▎Соседство:
В непосредственной близости находятся:
• Сетевые продовольственные супермаркеты :Находка, Магнит, Монетка, ФиксПрайс, Коммерческие банки, Почта, Сетевые аптеки
• Пункты ПВЗ Озон, WB, Яндекс Маркет
• Различные сервисы обслуживания населения
Это очень хорошая локация для бизнеса, где уже сформирована активная клиентская база.
Где находится
Контакты
Имя
Ашрапов Фарит Рафаилович
Телефон
+7 (993) 411-06-62
E-mail
kaminform@mail.ru
Под параметры Вашего помещения подходит 75 ритейлеров
Вид деятельности: Обувь
Ценовая категория:
- Средний
- Выше среднего
Площадь искомых помещений:
от 75 до 110 м²
Города присутствия:
Набережные Челны и ещё 3
Объявления из этого региона
Новости и пресса
26.02.2026
Бренд Marem из ЕКБ придет в Москву
Марка откроет первый флагман в столице. Бутик площадью порядка 160 кв. метров начнет работать в Столешниковом переулке [...]
