Аренда
Отдельно стоящее здание
120409 - Г. РОСТОВ-НА-ДОНУ, УЛ.БУЙНАКСКАЯ, 26/44
Ростовская обл
Сдается 2-х этажное помещение свободного назначения напрямую от Собственника
- Адрес: ул. Буйнакская 26/44
г. Ростов на Дону
- Общая площадь: 458 м²
-Возможна сдача как поэтажно так и целиком.
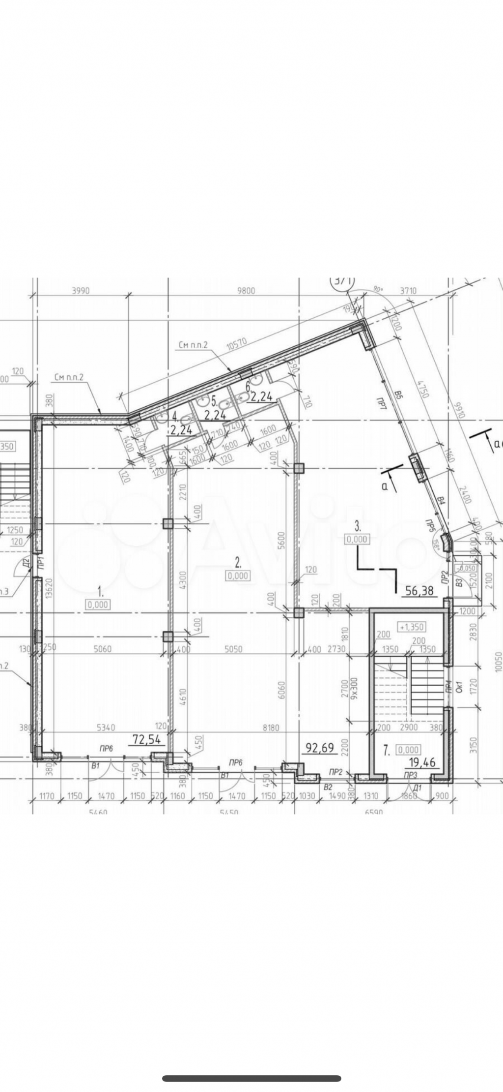
- Первый этаж: 229 м² разделен на несколько отдельных помещений:
1. 59 м2
высота потолков 4,5 м
сан уз...
118 (+1)
Навигация
Характеристики помещения
№ объявления
120409
Дата размещения
25.09.2025
Город
Ростов-на-Дону
Адрес
Ул.Буйнакская, 26/44
Расположено
Отдельно стоящее здание
Этаж
1
Предлагается
Аренда
Желаемый / подходящий вид деятельности
Свободное назначение
Назначение
Общ.Питание, ПСН, Торговое, Услуги
Размер площади (м2)
229
Цена за помещение
1 000 руб.
Цена за 1 кв. м
4,37 руб.
О помещении
Сдается 2-х этажное помещение свободного назначения напрямую от Собственника
- Адрес: ул. Буйнакская 26/44
г. Ростов на Дону
- Общая площадь: 458 м²
-Возможна сдача как поэтажно так и целиком.
- Первый этаж: 229 м² разделен на несколько отдельных помещений:
1. 59 м2
высота потолков 4,5 м
сан узел 2,24 м2
2. 95 м2
высота потолков 4,5 м
сан узел 2,24 м2 3. 75 м2
Высота потолков 4,5 м
сан узел 2,24 м2
- Второй этаж: 229
- Адрес: ул. Буйнакская 26/44
г. Ростов на Дону
- Общая площадь: 458 м²
-Возможна сдача как поэтажно так и целиком.
- Первый этаж: 229 м² разделен на несколько отдельных помещений:
1. 59 м2
высота потолков 4,5 м
сан узел 2,24 м2
2. 95 м2
высота потолков 4,5 м
сан узел 2,24 м2 3. 75 м2
Высота потолков 4,5 м
сан узел 2,24 м2
- Второй этаж: 229
Где находится
Контакты
Имя
Амбарцумян Абгар Сергеевич
Телефон
+7 (988) 575-27-13
E-mail
Abgar1990@rambler.ru
Под параметры Вашего помещения подходит 111 ритейлеров
Вид деятельности: Кафе, ресторан
Ценовая категория:
- Средний
Площадь искомых помещений:
от 50 до 350 м²
Города присутствия:
Ростов-на-Дону и ещё 53
Объявления из этого региона
Новости и пресса
23.04.2026
«Чкалов» привлек самые популярные фуд-концепции
В фуд-холле торговой галереи столичного МФК открылись корнер итальянской кухни Pizza & Pasta byLa Bottega Siciliana и корнер паназиатской кухни Pan-Asia by Gutai [...]


