Аренда
Бизнес центр
121447 - Г. САНКТ-ПЕТЕРБУРГ, ЮРИЯ ГАГАРИНА ПРОСПЕКТ, Д.1
Адыгея г
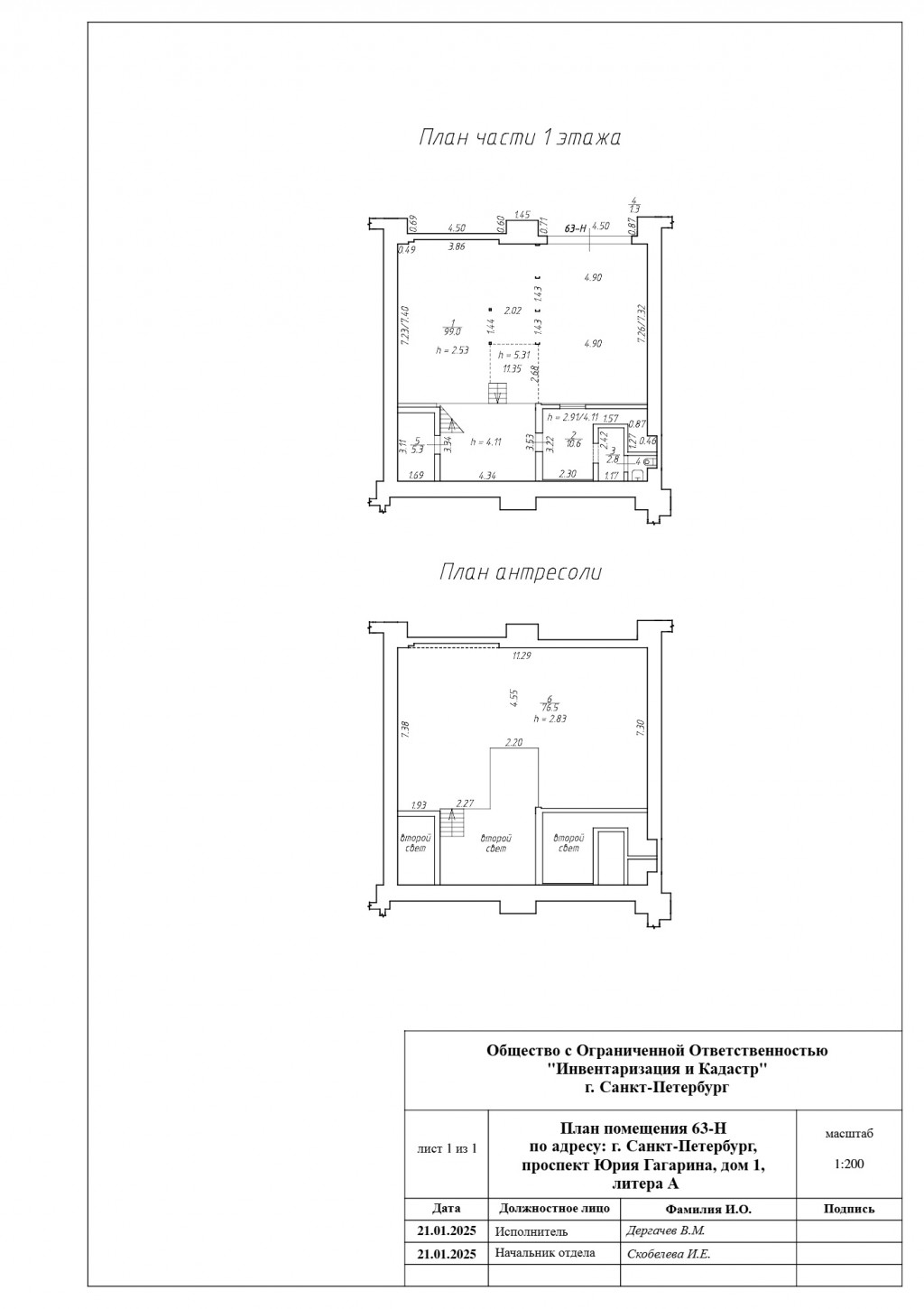
Аренда склада/помещения 195 м2 на пр. Гагарина, 1-й этаж, 150 000 /мес
Сдаётся в аренду универсальное помещение свободного назначения площадью 195 м2 на первом этаже бизнес-центра. Идеально подходит для склада, производства, пункта выдачи или мастерской.
Расположение:
Санкт-Петербург, пр. Юрия Гагарина, д....
83 (+1)
Навигация
Характеристики помещения
№ объявления
121447
Дата размещения
05.11.2025
Город
Санкт-Петербург
Адрес
Юрия Гагарина проспект, д.1
Расположено
Бизнес центр
Этаж
1
Предлагается
Аренда
Желаемый / подходящий вид деятельности
Не указано
Назначение
Не указано
Размер площади (м2)
195
Цена за помещение
150 000 руб.
Цена за 1 кв. м
770 руб.
О помещении
Аренда склада/помещения 195 м2 на пр. Гагарина, 1-й этаж, 150 000 /мес
Сдаётся в аренду универсальное помещение свободного назначения площадью 195 м2 на первом этаже бизнес-центра. Идеально подходит для склада, производства, пункта выдачи или мастерской.
Расположение:
Санкт-Петербург, пр. Юрия Гагарина, д. 1 (пересечение с ул. Благодатной). Отличная транспортная доступность.
Ключевые преимущества:
Первый этаж, отдельный вход и собственная погрузочная зона.
Полная комплектация: видеонаблюдение, охранная и пожарная сигнализация, интернет.
2 парковочных места и охраняемая территория.
Две мокрые точки, собственный санузел.
Двухуровневая планировка (2 этажа), есть лифт (250 кг).
Основные условия:
Арендная ставка: 150 000 /мес.
Коммунальный платеж в УК: 39 000 /мес. (фиксированный на год). Включает: водоснабжение, электричество, отопление, вывоз мусора, уборку территории, охрану 24/7.
Общая сумма в месяц: 189 000 .
Обеспечительный платеж: 1 месяц аренды (= 150 000 ).
Минимальный срок аренды: 6 месяцев.
Электрическая мощность: 20 кВт с возможностью увеличения.
Опционально: Возможность пользоваться имеющимся оборудованием (стеллажи, рохля, паллеты, рабочий стол и др.).[#7638152#]
Сдаётся в аренду универсальное помещение свободного назначения площадью 195 м2 на первом этаже бизнес-центра. Идеально подходит для склада, производства, пункта выдачи или мастерской.
Расположение:
Санкт-Петербург, пр. Юрия Гагарина, д. 1 (пересечение с ул. Благодатной). Отличная транспортная доступность.
Ключевые преимущества:
Первый этаж, отдельный вход и собственная погрузочная зона.
Полная комплектация: видеонаблюдение, охранная и пожарная сигнализация, интернет.
2 парковочных места и охраняемая территория.
Две мокрые точки, собственный санузел.
Двухуровневая планировка (2 этажа), есть лифт (250 кг).
Основные условия:
Арендная ставка: 150 000 /мес.
Коммунальный платеж в УК: 39 000 /мес. (фиксированный на год). Включает: водоснабжение, электричество, отопление, вывоз мусора, уборку территории, охрану 24/7.
Общая сумма в месяц: 189 000 .
Обеспечительный платеж: 1 месяц аренды (= 150 000 ).
Минимальный срок аренды: 6 месяцев.
Электрическая мощность: 20 кВт с возможностью увеличения.
Опционально: Возможность пользоваться имеющимся оборудованием (стеллажи, рохля, паллеты, рабочий стол и др.).[#7638152#]
Где находится
Контакты
Имя
Глеб
Телефон
+79330389641
E-mail
g89110090428@gmail.com
В радиусе 100 км от Вашего помещения найдено 210 ритейлеров
Точных совпадений по городу не найдено, показаны ритейлеры из ближайших городов
Вид деятельности: Продукты питания
Ценовая категория:
- Средний
Площадь искомых помещений:
от 30 до 250 м²
Города присутствия:
Санкт-Петербург (~0 км) и ещё 2
Объявления из этого региона
Новости и пресса
02.03.2026
В 2025 году районные ТЦ показывали рост операционных показателей
По данным Profit Management, посещаемость торговых центров сократилась примерно на 3% (в ряде регионов - до 30%). А РЦ, с актуальной концепцией и выверенным tenant-mix, наоборот показали прирост трафика [...]







