Продажа
Отдельно стоящее здание
117535 - Г. МОСКВА, ПЯТНИЦКОЕ ШОССЕ, Д.43К2
Москва / Московская обл
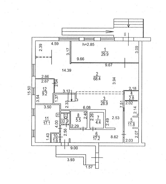
Сбер А предлагает право заключения договора купли-продажи нежилого помещения площадью 198,7 кв.м, расположенного по адресу: город Москва, вн.терр. г. муниципальный округ Митино, шоссе Пятницкое, д.43, корпус 2, помещение 1/1.
Продажа посредством проведения торгов на электронной площадке Сбербанк-АСТ.
Номер п...
275 (+1)
Навигация
Характеристики помещения
№ объявления
117535
Дата размещения
10.03.2026
Город
Москва
Адрес
Пятницкое шоссе, д.43к2
Расположено
Отдельно стоящее здание
Этаж
1
Предлагается
Продажа
Желаемый / подходящий вид деятельности
Не указано
Назначение
Не указано
Размер площади (м2)
198.7
Цена за помещение
46 457 000 руб.
О помещении
Сбер А предлагает право заключения договора купли-продажи нежилого помещения площадью 198,7 кв.м, расположенного по адресу: город Москва, вн.терр. г. муниципальный округ Митино, шоссе Пятницкое, д.43, корпус 2, помещение 1/1.
Продажа посредством проведения торгов на электронной площадке Сбербанк-АСТ.
Номер процедуры: SBR065-2511120001
Собственник: Московский банк ПАО Сбербанк
О лоте:
Нежилое помещение площадью 198,7 кв.м.,
Этаж: 1
Кадастровый номер: 77:08:0002014:2070
Обратная аренда: нет
Особые условия:
На Объекте произведена перепланировка, не согласованная в установленном законом порядке.
Дополнительная информация, документы и условия реализации указаны на площадке в разделе «Документы».
По всем вопросам, связанным с лотом, обращайтесь в рабочее время по телефону с 09: 00 до 18: 00 по МСК.[#6889002#]
Продажа посредством проведения торгов на электронной площадке Сбербанк-АСТ.
Номер процедуры: SBR065-2511120001
Собственник: Московский банк ПАО Сбербанк
О лоте:
Нежилое помещение площадью 198,7 кв.м.,
Этаж: 1
Кадастровый номер: 77:08:0002014:2070
Обратная аренда: нет
Особые условия:
На Объекте произведена перепланировка, не согласованная в установленном законом порядке.
Дополнительная информация, документы и условия реализации указаны на площадке в разделе «Документы».
По всем вопросам, связанным с лотом, обращайтесь в рабочее время по телефону с 09: 00 до 18: 00 по МСК.[#6889002#]
Где находится
Контакты
Имя
Дмитрий СБЕРБАНК АСТ
Телефон
+79857269929, +79857269929
E-mail
dsvysotskyv@sberbank-ast.ru
Под параметры Вашего помещения подходит 293 ритейлера
Вид деятельности: Кафе, ресторан
Ценовая категория:
- Средний
Площадь искомых помещений:
от 10 до 200 м²
Города присутствия:
Москва и ещё 2
Объявления из этого региона
Новости и пресса
12.03.2026
«Снежная Королева» чувствует себя финансово устойчиво
В 2025 году компания сократила количество магазинов, но увеличила прибыль от продаж, прибыль и другие показатели [...]






