Аренда
Жилой дом
123929 - Г. МОСКВА, КРУЗЕНШТЕРНА УЛИЦА, Д.9
Москва / Московская обл
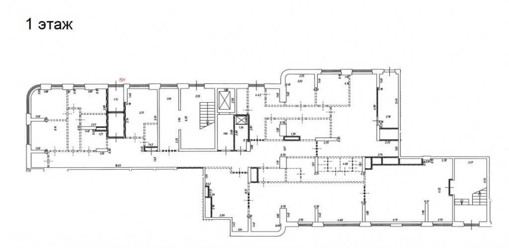
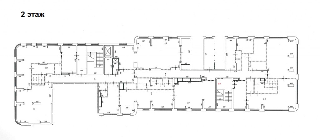
Сдаётся помещение под размещение детского образовательного центра в ЖК Символ по адресу: Москва, ул. Крузенштерна, дом 9.
Характеристики помещения:
этаж 1, 2
площадь 1 259,1 кв.м.
высота потолков 5,25 м на 1 этаже и 3,80 м на 2 этаже
наличие коммуникаций - электроэнергия 133,5 кВт
противопожарная сис...
4 (+)
Навигация
Характеристики помещения
№ объявления
123929
Дата размещения
02.04.2026
Город
Москва
Адрес
Крузенштерна улица, д.9
Расположено
Жилой дом
Этаж
1
Предлагается
Аренда
Желаемый / подходящий вид деятельности
Не указано
Назначение
Не указано
Размер площади (м2)
1259.1
Цена за помещение
2 000 000 руб.
Цена за 1 кв. м
1 589 руб.
О помещении
Сдаётся помещение под размещение детского образовательного центра в ЖК Символ по адресу: Москва, ул. Крузенштерна, дом 9.
Характеристики помещения:
этаж 1, 2
площадь 1 259,1 кв.м.
высота потолков 5,25 м на 1 этаже и 3,80 м на 2 этаже
наличие коммуникаций - электроэнергия 133,5 кВт
противопожарная система
водоснабжение
отопление
состояние помещения Shell & Core
арендные каникулы предоставляются
Жилой квартал расположен рядом с метро Авиамоторная, Площадь Ильича, Римская, МДД-4 ст. Серп и Молот, с развитой инфраструктурой, парком Зеленая река и новой архитектурой.
Для кого подходит: детский сад, школа[#8183626#]
Характеристики помещения:
этаж 1, 2
площадь 1 259,1 кв.м.
высота потолков 5,25 м на 1 этаже и 3,80 м на 2 этаже
наличие коммуникаций - электроэнергия 133,5 кВт
противопожарная система
водоснабжение
отопление
состояние помещения Shell & Core
арендные каникулы предоставляются
Жилой квартал расположен рядом с метро Авиамоторная, Площадь Ильича, Римская, МДД-4 ст. Серп и Молот, с развитой инфраструктурой, парком Зеленая река и новой архитектурой.
Для кого подходит: детский сад, школа[#8183626#]
Где находится
Контакты
Имя
Тарасова Ольга
Телефон
+74950854273
E-mail
Tarasova_OV@dsinv.ru
Под параметры Вашего помещения подходит 75 ритейлеров
Вид деятельности: Продукты питания
Ценовая категория:
- Дисконт
- Ниже среднего
Площадь искомых помещений:
от 250 до 1500 м²
Города присутствия:
Москва и ещё 143
Объявления из этого региона
Новости и пресса
17.03.2026
Новые иностранные бренды отказываются от площадей в ТЦ Москвы
По данным IBC Real Estate, с 2023 по 2026 года объем освободившихся площадей составляет почти 24 тыс кв. метров [...]






