Аренда
Жилой дом
117093 - Г. КОРОЛЕВ, КОРОЛЁВ, ПОЛЕВАЯ УЛИЦА, Д.7
Москва / Московская обл
Сдаётся в аренду коммерческое помещение площадью 65,5 м на 1-м этаже 5-этажного жилого дома в ЖК «Театральный Парк».
Основные преимущества:
- отдельный вход;
- место под вывеску;
- круглосуточный доступ;
- помещение без ремонта, что позволяет обустроить его по своему вкусу и требованиям бизнеса;
- поме...
372 (+2)
Навигация
Характеристики помещения
№ объявления
117093
Дата размещения
24.05.2026
Город
Королев
Адрес
Королёв, Полевая улица, д.7
Расположено
Жилой дом
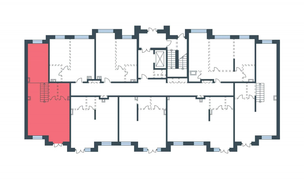
Этаж
1
Предлагается
Аренда
Желаемый / подходящий вид деятельности
Не указано
Назначение
Не указано
Размер площади (м2)
65.5
Цена за помещение
94 975 руб.
Цена за 1 кв. м
1 450 руб.
О помещении
Сдаётся в аренду коммерческое помещение площадью 65,5 м на 1-м этаже 5-этажного жилого дома в ЖК «Театральный Парк».
Основные преимущества:
- отдельный вход;
- место под вывеску;
- круглосуточный доступ;
- помещение без ремонта, что позволяет обустроить его по своему вкусу и требованиям бизнеса;
- помещение находится в жилом комплексе комфорт-класса;
- развитый район с насыщенной инфраструктурой и активным пешеходным трафиком.
Технические характеристики: наличие всех необходимых коммуникаций: водоснабжение, канализация, электроснабжение. Выделенная мощность - 13,1 кВт. Высота потолков - 4,2 м.
Условия: помещение предоставляется без посредников, напрямую от собственника - компании «Аструм Недвижимость», которая управляет коммерческой инфраструктурой жилых комплексов ГК «Гранель».
ЖК «Театральный Парк» от ГК «Гранель» - это современный малоэтажный комплекс комфорт-класса, расположенный в экологически чистом районе подмосковного Королева, всего в 7 км от МКАД. Близость к Москве позволяет совмещать активную деятельность в столице с комфортной жизнью за городом. Комплекс возведен на площади 27 га, включает 42 кирпичных дома и всю необходимую для жизни инфраструктуру. Микрорайон уже практически полностью заселен более чем 4,5 тысячами жителей, большинство из которых - активные люди в возрасте 20-50 лет, что гарантирует высокий пешеходный трафик. На первых этажах жилых корпусов, как в данном предложении, расположены коммерческие помещения.
Наши менеджеры помогут вам подобрать наиболее подходящее помещение для вашего бизнеса. Звоните и узнайте подробности![#7213929#]
Основные преимущества:
- отдельный вход;
- место под вывеску;
- круглосуточный доступ;
- помещение без ремонта, что позволяет обустроить его по своему вкусу и требованиям бизнеса;
- помещение находится в жилом комплексе комфорт-класса;
- развитый район с насыщенной инфраструктурой и активным пешеходным трафиком.
Технические характеристики: наличие всех необходимых коммуникаций: водоснабжение, канализация, электроснабжение. Выделенная мощность - 13,1 кВт. Высота потолков - 4,2 м.
Условия: помещение предоставляется без посредников, напрямую от собственника - компании «Аструм Недвижимость», которая управляет коммерческой инфраструктурой жилых комплексов ГК «Гранель».
ЖК «Театральный Парк» от ГК «Гранель» - это современный малоэтажный комплекс комфорт-класса, расположенный в экологически чистом районе подмосковного Королева, всего в 7 км от МКАД. Близость к Москве позволяет совмещать активную деятельность в столице с комфортной жизнью за городом. Комплекс возведен на площади 27 га, включает 42 кирпичных дома и всю необходимую для жизни инфраструктуру. Микрорайон уже практически полностью заселен более чем 4,5 тысячами жителей, большинство из которых - активные люди в возрасте 20-50 лет, что гарантирует высокий пешеходный трафик. На первых этажах жилых корпусов, как в данном предложении, расположены коммерческие помещения.
Наши менеджеры помогут вам подобрать наиболее подходящее помещение для вашего бизнеса. Звоните и узнайте подробности![#7213929#]
Где находится
Контакты
Имя
Отдел продаж
Телефон
+74950239502
E-mail
zayavka@astrum-estate.ru
Под параметры Вашего помещения подходит 55 ритейлеров
Вид деятельности: Аптека
Ценовая категория:
- Средний
Площадь искомых помещений:
от 30 до 70 м²
Города присутствия:
Королев и ещё 426
Объявления из этого региона
Новости и пресса
24.04.2026
«Группа Лента» поменяла «Эконом» на «Семью»
Компания запустила новый гипермаркет площадью более 3,4 тыс кв. метров под брендом «Семья» в Саратове [...]







