Аренда
Street retail
120374 - Г. МОСКВА, Б-Р АДМИРАЛА УШАКОВА, Д. 5
Москва / Московская обл
Добрый день!
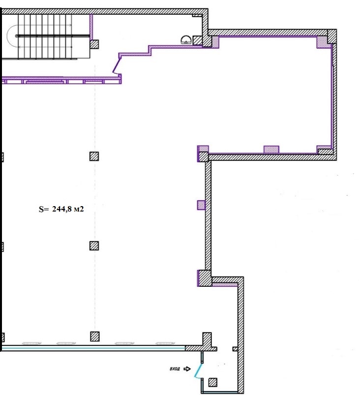
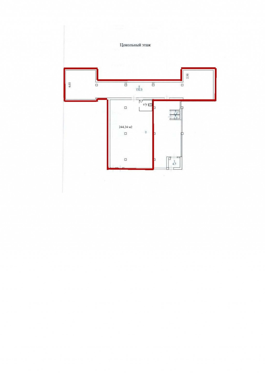
Предлагаем в аренду нежилое помещение Street Retail 489,04 м2 (1 этаж – 244,8 м2, цоколь – 244,24 м2) Москва, бульвар Адмирала Ушакова, д. 5
Расположено на 1 этаже и цоколе в МКД.
Напротив входа в м. Улица Скобелевская 1 мин. ходьбы, м. бульвар Адмирала Ушакова в 8 мин.
Первая линия домов....
129 (+1)
Навигация
Характеристики помещения
№ объявления
120374
Дата размещения
19.09.2025
Город
Москва
Адрес
б-р Адмирала Ушакова, д. 5
Расположено
Street retail
Этаж
1
Предлагается
Аренда
Желаемый / подходящий вид деятельности
Не указан
Назначение
ПСН, Торговое, Услуги
Размер площади (м2)
489
Цена за помещение
1 550 000 руб.
Цена за 1 кв. м
3 169,73 руб.
О помещении
Добрый день!
Предлагаем в аренду нежилое помещение Street Retail 489,04 м2 (1 этаж – 244,8 м2, цоколь – 244,24 м2) Москва, бульвар Адмирала Ушакова, д. 5
Расположено на 1 этаже и цоколе в МКД.
Напротив входа в м. Улица Скобелевская 1 мин. ходьбы, м. бульвар Адмирала Ушакова в 8 мин.
Первая линия домов.
Высота потолков 2,9 м – 1 этаж, 2,6 м – цоколь.
ХВС, ГВС, отопление, канализация , электричество (1 этаж-15 кВт, 15 кВт -цоколь)
1 вход на 1 этаже, 1 вход со внутренней стороны двора в цоколе.
Витринное остекление.
Рядом ГПБ, ВТБ, Сбер, Аптека, Перекресток.
Густонаселенный жилой сектор, прекрасно просматривается с дороги, с легкого метро.
Предлагаем в аренду нежилое помещение Street Retail 489,04 м2 (1 этаж – 244,8 м2, цоколь – 244,24 м2) Москва, бульвар Адмирала Ушакова, д. 5
Расположено на 1 этаже и цоколе в МКД.
Напротив входа в м. Улица Скобелевская 1 мин. ходьбы, м. бульвар Адмирала Ушакова в 8 мин.
Первая линия домов.
Высота потолков 2,9 м – 1 этаж, 2,6 м – цоколь.
ХВС, ГВС, отопление, канализация , электричество (1 этаж-15 кВт, 15 кВт -цоколь)
1 вход на 1 этаже, 1 вход со внутренней стороны двора в цоколе.
Витринное остекление.
Рядом ГПБ, ВТБ, Сбер, Аптека, Перекресток.
Густонаселенный жилой сектор, прекрасно просматривается с дороги, с легкого метро.
Где находится
Контакты
Имя
Ольга
Телефон
+7 (919) 723-40-36
E-mail
Lelik_sp07@mail.ru
Под параметры Вашего помещения подходит 143 ритейлера
Вид деятельности: Продукты питания
Ценовая категория:
- Дисконт
- Ниже среднего
Площадь искомых помещений:
от 250 до 1500 м²
Города присутствия:
Москва и ещё 143
Объявления из этого региона
Новости и пресса
29.04.2026
ADG group структурирует портфель районных центров в один из крупнейших ЗПИФов на рынке
В периметр сделки войдут 26 объектов класса А, формирующих сеть РЦ «Место встречи» совокупной площадью около 373 тыс кв. метров. Оценка активов превышает 50 млрд рублей [...]




