Продажа
                
                121473 - Г. СТРУНИНО, СОВЕТСКАЯ УЛИЦА, Д.1СТР1
Владимирская обл
                
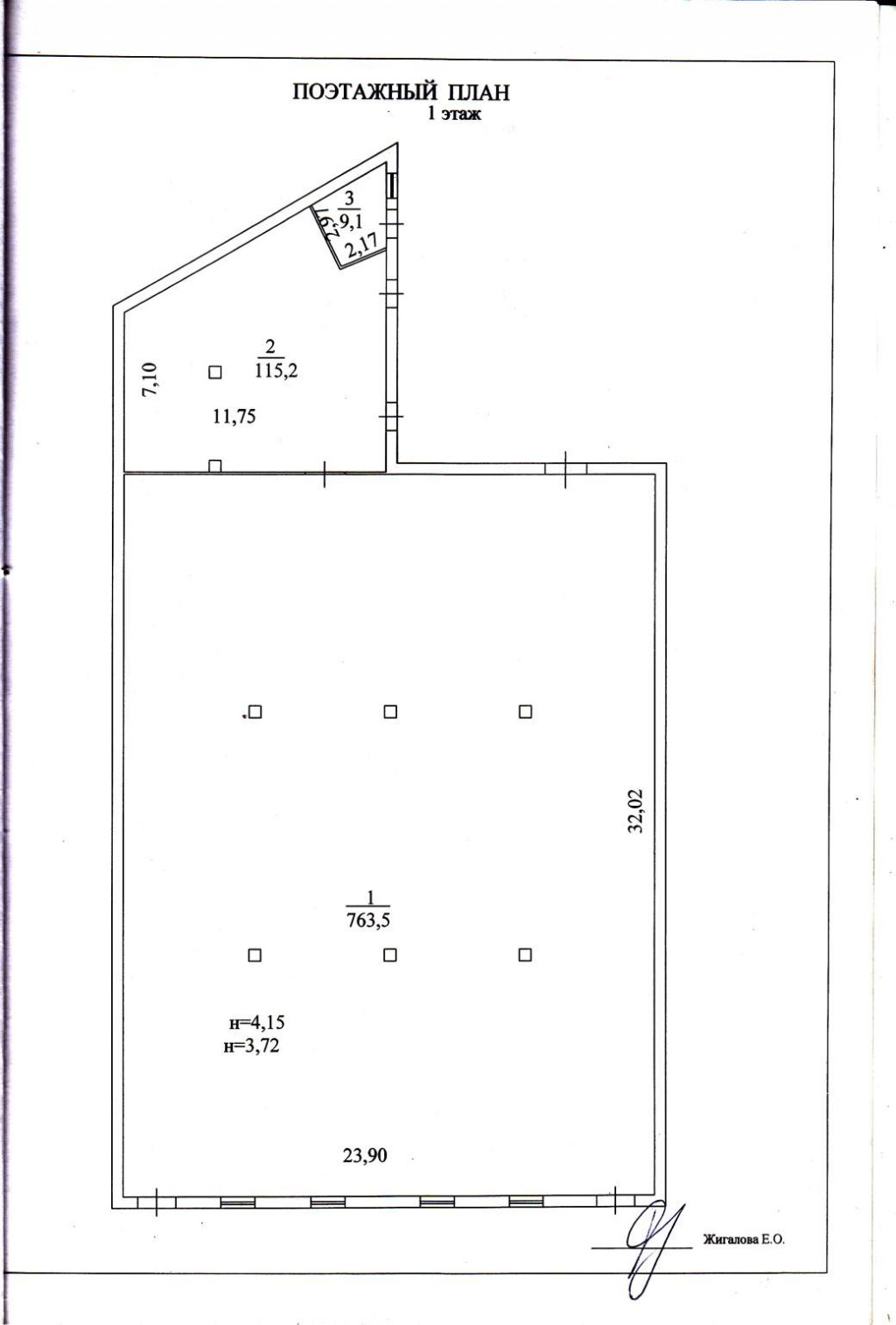
                Продается, площадью 887.8 м2, этажей в здании - 1. Здание находится рядом с железнодорожной платформой, удобное расположение, асфальтированная дорога. Подойдет для размещения производства и объекта торговли[#7649211#]
            12 (+2)
        
                    
                    Навигация
                
                Характеристики помещения
                        
                    
                                № объявления
                            
                            
                                121473                            
                        
                                Дата размещения
                            
                            
                                04.11.2025                            
                        
                                Город
                            
                            
                                Струнино                            
                        
                                Адрес
                            
                            
                                Советская улица, д.1стр1                            
                        
                                Расположено
                            
                            
                                Этаж
                            
                            
                                Предлагается
                            
                            
                                Продажа                            
                        
                                Желаемый / подходящий вид деятельности
                            
                            
                                Не указано                            
                        
                                Назначение
                            
                            
                                Не указано                            
                        
                                Размер площади (м2)
                            
                            
                                887.8                            
                        
                                Цена за помещение
                            
                            
                                29 900 000 руб.
                            
                        О помещении
                    
                        Продается, площадью 887.8 м2, этажей в здании - 1. Здание находится рядом с железнодорожной платформой, удобное расположение, асфальтированная дорога. Подойдет для размещения производства и объекта торговли[#7649211#]                    
                Где находится
                    Контакты
                        
                    Имя
                            Елена Носовец
                            Телефон
                            +79927007906
                            E-mail
                            elena-25f@yandex.ru
                            
                        Объявления из этого региона
                    
                Новости и пресса
                
                08.10.2025
                «Наследникъ Выжанова» решил обосноваться в Санкт-Петербурге
                
                    Российский бренд детской одежды открыл первый магазин в северной столице. Бутик площадью более 110 кв. метров расположился а ТК «Невский Центр» [...]
                
            




