Продажа
120453 - Г. ОРЕХОВО-ЗУЕВО, КЛЯЗЬМИНСКИЙ ПРОЕЗД, Д.2К2
Москва / Московская обл
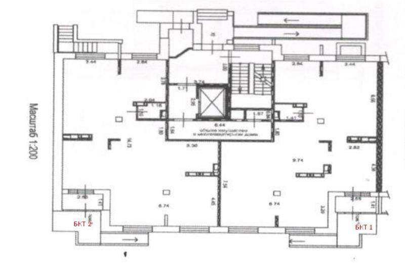
Предлагается в продажу торговое помещение в новом жилом комплексе на Набережной. БКТ №1
Продажа от Застройщика. Помещение имеет отдельный вход. Удобная транспортная доступность. Первый этаж. Вся современная инженерия. Высота потолков 4 метра. Электрическая мощность 0,2 кВт на м2. Состояние помещений - под отд...
158 (+1)
Навигация
Характеристики помещения
№ объявления
120453
Дата размещения
17.11.2025
Город
Орехово-Зуево
Адрес
Клязьминский проезд, д.2к2
Расположено
Этаж
1
Предлагается
Продажа
Желаемый / подходящий вид деятельности
Не указано
Назначение
Не указано
Размер площади (м2)
109.4
Цена за помещение
8 752 000 руб.
О помещении
Предлагается в продажу торговое помещение в новом жилом комплексе на Набережной. БКТ №1
Продажа от Застройщика. Помещение имеет отдельный вход. Удобная транспортная доступность. Первый этаж. Вся современная инженерия. Высота потолков 4 метра. Электрическая мощность 0,2 кВт на м2. Состояние помещений - под отделку.[#7533367#]
Продажа от Застройщика. Помещение имеет отдельный вход. Удобная транспортная доступность. Первый этаж. Вся современная инженерия. Высота потолков 4 метра. Электрическая мощность 0,2 кВт на м2. Состояние помещений - под отделку.[#7533367#]
Где находится
Контакты
Имя
Отдел продаж
Телефон
+74951520879
E-mail
info@fsk.ru
Под параметры Вашего помещения подходит 35 ритейлеров
Вид деятельности: Все для дома
Ценовая категория:
- Средний
Площадь искомых помещений:
от 100 до 400 м²
Города присутствия:
Орехово-Зуево и ещё 8
Объявления из этого региона
Новости и пресса
26.03.2026
Компактный формат с премиальной визуализацией набирает популярность в продуктовом ритейле
В сегменте продуктовых магазинов «у дома» усиливается тренд на компактные торговые пространства с визуальным качеством, близким к премиальному. Так, в Москве, в Инновационном центре «Сколково», был открыт магазин «Любимый маркет» площадью 70 кв. метров [...]


