Аренда
Жилой дом
123452 - Г. ОДИНЦОВО, СЕВЕРНАЯ УЛИЦА, Д.5К1
Москва / Московская обл
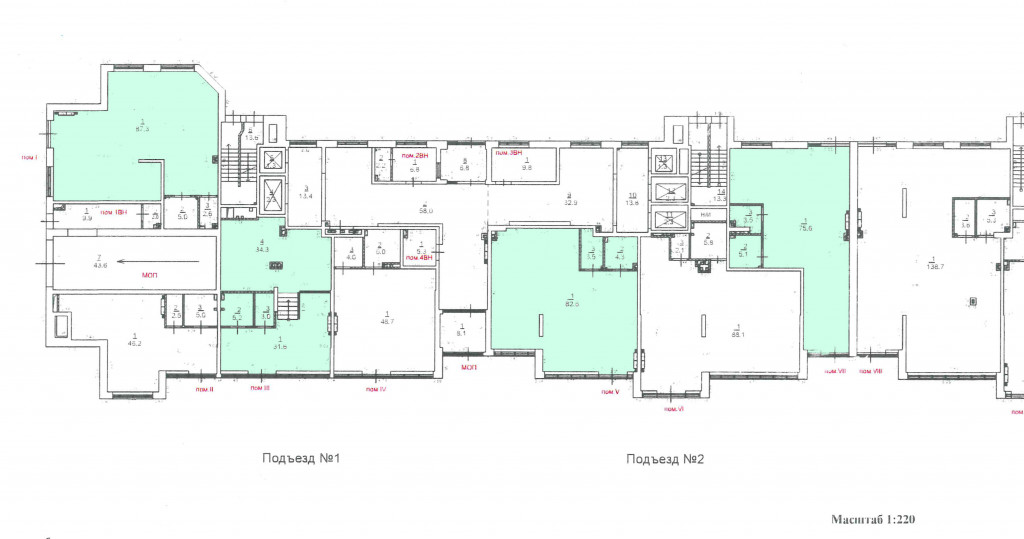
Аренда коммерческого помещения в ЖК «Одинбург», корпус «Луч 4» (Одинцово, ул. Северная,5к1)
О комплексе: «Одинбург» — масштабный проект AFI Development в Одинцово, строящийся по принципу «город в городе». На территории 33 га появится 450 тыс. кв.м жилья и социальных объектов. Комплекс включает 11 монолитных к...
85 (+1)
Навигация
Характеристики помещения
№ объявления
123452
Дата размещения
28.03.2026
Город
Одинцово
Адрес
Северная улица, д.5к1
Расположено
Жилой дом
Этаж
1
Предлагается
Аренда
Желаемый / подходящий вид деятельности
Не указано
Назначение
Не указано
Размер площади (м2)
74.1
Цена за помещение
216 125 руб.
Цена за 1 кв. м
2 917 руб.
О помещении
Аренда коммерческого помещения в ЖК «Одинбург», корпус «Луч 4» (Одинцово, ул. Северная,5к1)
О комплексе: «Одинбург» — масштабный проект AFI Development в Одинцово, строящийся по принципу «город в городе». На территории 33 га появится 450 тыс. кв.м жилья и социальных объектов. Комплекс включает 11 монолитных корпусов высотой от 16 до 25 этажей. В двух очередях планируется поселить более 24 000 человек, поэтому коммерческие площади на первой линии будут востребованы.
Локация: корпус «Луч 4» расположен вдоль улицы Северная — главной транспортной артерии района. Рядом находятся остановки автобусов №339 и 461, а также МЦД 1 «Одинцово» (15 минут). До МКАД — 7 минут на автомобиле.
Предлагаемое помещение:
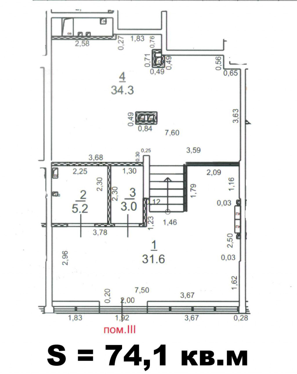
Площадь: 74,1 кв.м.
Высота потолков: 4,5 м.
Витринные окна и отдельные входы на фасад.
Центральные коммуникации: отопление, водоснабжение, канализация и вентиляция.
Черновая отделка («бетон») — инженерные сети заведены, финальная мощность электропитания будет увеличена.
Преимущества первой линии:
Высокий автомобильный и пешеходный трафик на ул. Северной.
Отличная видимость с дороги, возможность наружной рекламы.
Парковка и остановка общественного транспорта у входа.
Ликвидные площади, востребованные для кафе, пекарен, аптек, салонов красоты, пунктов выдачи маркетплейсов и офисов.
Условия аренды:
Прямая аренда от собственника.
Долгосрочный договор.
Возможны арендные каникулы.
Обсуждение индивидуальных условий.
Сочетание крупного жилого квартала (24 000 жителей), собственной инфраструктуры и первой линии вдоль Северной улицы делает эти помещения оптимальными для ритейла и услуг.
Идеально под: кофейню, пекарню, аптеку, салон красоты, стоматологию, офис продаж, пункт выдачи маркетплейсов, магазин или услуги.[#7959864#]
О комплексе: «Одинбург» — масштабный проект AFI Development в Одинцово, строящийся по принципу «город в городе». На территории 33 га появится 450 тыс. кв.м жилья и социальных объектов. Комплекс включает 11 монолитных корпусов высотой от 16 до 25 этажей. В двух очередях планируется поселить более 24 000 человек, поэтому коммерческие площади на первой линии будут востребованы.
Локация: корпус «Луч 4» расположен вдоль улицы Северная — главной транспортной артерии района. Рядом находятся остановки автобусов №339 и 461, а также МЦД 1 «Одинцово» (15 минут). До МКАД — 7 минут на автомобиле.
Предлагаемое помещение:
Площадь: 74,1 кв.м.
Высота потолков: 4,5 м.
Витринные окна и отдельные входы на фасад.
Центральные коммуникации: отопление, водоснабжение, канализация и вентиляция.
Черновая отделка («бетон») — инженерные сети заведены, финальная мощность электропитания будет увеличена.
Преимущества первой линии:
Высокий автомобильный и пешеходный трафик на ул. Северной.
Отличная видимость с дороги, возможность наружной рекламы.
Парковка и остановка общественного транспорта у входа.
Ликвидные площади, востребованные для кафе, пекарен, аптек, салонов красоты, пунктов выдачи маркетплейсов и офисов.
Условия аренды:
Прямая аренда от собственника.
Долгосрочный договор.
Возможны арендные каникулы.
Обсуждение индивидуальных условий.
Сочетание крупного жилого квартала (24 000 жителей), собственной инфраструктуры и первой линии вдоль Северной улицы делает эти помещения оптимальными для ритейла и услуг.
Идеально под: кофейню, пекарню, аптеку, салон красоты, стоматологию, офис продаж, пункт выдачи маркетплейсов, магазин или услуги.[#7959864#]
Где находится
Контакты
Имя
Александр
Телефон
+79862237992
E-mail
sb@faktor.ru
Под параметры Вашего помещения подходит 73 ритейлера
Вид деятельности: Кафе, ресторан
Ценовая категория:
- Средний
Площадь искомых помещений:
от 50 до 350 м²
Города присутствия:
Одинцово и ещё 53
Объявления из этого региона
Новости и пресса
04.05.2026
Проекты на стыке beauty и wellness выходят в топовые городские локации
Так, на улице Жуковского в Санкт-Петербурге открылось новое пространство красоты и здоровья «Проект Тело 2.0» площадью более 540 кв. метров [...]







