Аренда
Жилой дом
117403 - Г. МОСКВА, ШАРИКОПОДШИПНИКОВСКАЯ УЛИЦА, Д.11К1
Москва / Московская обл
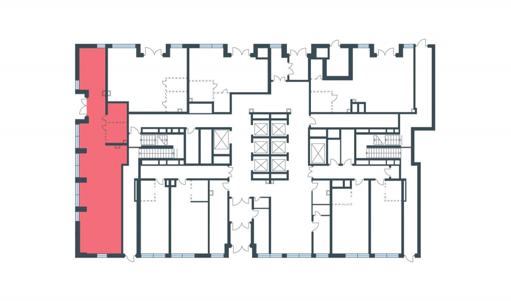
Сдаётся в аренду коммерческое помещение площадью 89,3 мна 1-м этаже жилого дома в ЖК «MYPRIORITY Дубровка».
Основные преимущества:
Отдельный вход;
Место под вывеску;
Витринное остекление;
Арендные каникулы;
Помещение без ремонта, что позволяет обустроить его по своему вкусу и требованиям бизнеса;
Нали...
138 (+1)
Навигация
Характеристики помещения
№ объявления
117403
Дата размещения
27.11.2025
Город
Москва
Адрес
Шарикоподшипниковская улица, д.11к1
Расположено
Жилой дом
Этаж
1
Предлагается
Аренда
Желаемый / подходящий вид деятельности
Не указано
Назначение
Не указано
Размер площади (м2)
89.3
Цена за помещение
401 850 руб.
Цена за 1 кв. м
4 500 руб.
О помещении
Сдаётся в аренду коммерческое помещение площадью 89,3 мна 1-м этаже жилого дома в ЖК «MYPRIORITY Дубровка».
Основные преимущества:
Отдельный вход;
Место под вывеску;
Витринное остекление;
Арендные каникулы;
Помещение без ремонта, что позволяет обустроить его по своему вкусу и требованиям бизнеса;
Наличие коммуникаций: водоснабжения, канализации, электроснабжения, отопления;
Помещение находится в новом жилом комплексе бизнес-класса;
Метро в пешей доступности;
Развитый район с насыщенной инфраструктурой и активным пешеходным трафиком.
Технические характеристики: наличие всех необходимых коммуникаций: водоснабжение, канализация, электроснабжение. Выделенная мощность -17,9 кВт.
Условия: помещение предоставляется без посредников, напрямую от собственника - компании «Аструм Недвижимость», которая управляет коммерческой инфраструктурой жилых комплексов ГК «Гранель».
ЖК «MYPRIORITY Дубровка» расположен в ЮВАО Москвы, в шаговой доступности от метро «Дубровка». Это перспективное место для открытия бизнеса благодаря высокой транспортной доступности (рядом ТТК, станции метро и МЦК) и плотной жилой застройке. Комплекс сочетает современные архитектурные решения от бюро T+T Architects с динамичной урбанистической средой, что привлекает внимание как местных жителей, так и посетителей.
На первых этажах комплекса представлены коммерческие помещения площадью от 26 до 302 кв. м. Каждое помещение имеет отдельный вход, витринное остекление и возможность гибкой планировки. Здесь можно открыть супермаркет, кафе, офис, магазин или предприятие сферы услуг. Высокий пешеходный трафик обеспечивается благодаря близости жилого комплекса и будущего крупного общественно-делового квартала.
«MYPRIORITY Дубровка» - это не только комфортное место для жизни, но и отличная площадка для развития бизнеса.
Наши менеджеры помогут вам подобрать наиболее подходящее помещение для вашего бизнеса. Звоните и узнайте подробности.[#7325289#]
Основные преимущества:
Отдельный вход;
Место под вывеску;
Витринное остекление;
Арендные каникулы;
Помещение без ремонта, что позволяет обустроить его по своему вкусу и требованиям бизнеса;
Наличие коммуникаций: водоснабжения, канализации, электроснабжения, отопления;
Помещение находится в новом жилом комплексе бизнес-класса;
Метро в пешей доступности;
Развитый район с насыщенной инфраструктурой и активным пешеходным трафиком.
Технические характеристики: наличие всех необходимых коммуникаций: водоснабжение, канализация, электроснабжение. Выделенная мощность -17,9 кВт.
Условия: помещение предоставляется без посредников, напрямую от собственника - компании «Аструм Недвижимость», которая управляет коммерческой инфраструктурой жилых комплексов ГК «Гранель».
ЖК «MYPRIORITY Дубровка» расположен в ЮВАО Москвы, в шаговой доступности от метро «Дубровка». Это перспективное место для открытия бизнеса благодаря высокой транспортной доступности (рядом ТТК, станции метро и МЦК) и плотной жилой застройке. Комплекс сочетает современные архитектурные решения от бюро T+T Architects с динамичной урбанистической средой, что привлекает внимание как местных жителей, так и посетителей.
На первых этажах комплекса представлены коммерческие помещения площадью от 26 до 302 кв. м. Каждое помещение имеет отдельный вход, витринное остекление и возможность гибкой планировки. Здесь можно открыть супермаркет, кафе, офис, магазин или предприятие сферы услуг. Высокий пешеходный трафик обеспечивается благодаря близости жилого комплекса и будущего крупного общественно-делового квартала.
«MYPRIORITY Дубровка» - это не только комфортное место для жизни, но и отличная площадка для развития бизнеса.
Наши менеджеры помогут вам подобрать наиболее подходящее помещение для вашего бизнеса. Звоните и узнайте подробности.[#7325289#]
Где находится
Контакты
Имя
Отдел продаж
Телефон
+74950239502
E-mail
zayavka@astrum-estate.ru
Объявления из этого региона
Новости и пресса
20.11.2025
«Хочу Пури», «Горячий Цех» и другие рестораны будут работать быстрее
Компания «ЯсноРестораны», управляющая брендами «Хочу Пури», «Горячий Цех» и другими заведениями, внедрила цифровую платформу для оптимизации процессов технического обслуживания заведений [...]







