Продажа
120482 - Г. ЛЮБЕРЦЫ, РОЖДЕСТВЕНСКАЯ УЛИЦА, Д.12
Москва / Московская обл
Помещение под МЕДЦЕНТР от ЗАСТРОЙЩИКА!
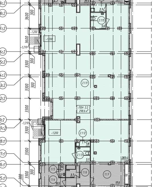
Нежилое помещение № 2.2, корпус 5.1, общей площадью 298,60 м2, первый этаж, 1 вход с улицы, 1 вход со двора. напротив муниципальный ДОО на 560 мест и Школа на 1500 мест. Помещение выходит на первую линию внутриквартального сквозного проезда. Есть стихийная парковка вдол...
311 (+)
Навигация
Характеристики помещения
№ объявления
120482
Дата размещения
16.05.2026
Город
Люберцы
Адрес
Рождественская улица, д.12
Расположено
Этаж
1
Предлагается
Продажа
Желаемый / подходящий вид деятельности
Не указано
Назначение
Не указано
Размер площади (м2)
298.6
Цена за помещение
65 732 000 руб.
О помещении
Помещение под МЕДЦЕНТР от ЗАСТРОЙЩИКА!
Нежилое помещение № 2.2, корпус 5.1, общей площадью 298,60 м2, первый этаж, 1 вход с улицы, 1 вход со двора. напротив муниципальный ДОО на 560 мест и Школа на 1500 мест. Помещение выходит на первую линию внутриквартального сквозного проезда. Есть стихийная парковка вдоль улицы. Высота потолков 4 м, выделенная мощность - 0,2кВт/ м2, предчистовая отделка. Заведены точки подключения к системам вентиляции, гвс/хвс, канализации. В помещении 9 больших витринных окон, предназначено под организацию поликлиники/мед. кабинета, под помещением - тех. этаж+кладовые.
Дом вводится в эксплуатацию в 3 кв. 2024 г.
ЖК сдан, заселен. Жилой комплекс расположен в 5 минутах езды от станций метро "Некрасовка», МЦД ст. Люберцы-1,2. Общее количеством квартир 4 700 шт. и населением более 8 000 человек.
Целевая продажа - под мед. услуги. Доступна беспроцентная рассрочка на 2 года, все подробности по телефону.[#7533405#]
Нежилое помещение № 2.2, корпус 5.1, общей площадью 298,60 м2, первый этаж, 1 вход с улицы, 1 вход со двора. напротив муниципальный ДОО на 560 мест и Школа на 1500 мест. Помещение выходит на первую линию внутриквартального сквозного проезда. Есть стихийная парковка вдоль улицы. Высота потолков 4 м, выделенная мощность - 0,2кВт/ м2, предчистовая отделка. Заведены точки подключения к системам вентиляции, гвс/хвс, канализации. В помещении 9 больших витринных окон, предназначено под организацию поликлиники/мед. кабинета, под помещением - тех. этаж+кладовые.
Дом вводится в эксплуатацию в 3 кв. 2024 г.
ЖК сдан, заселен. Жилой комплекс расположен в 5 минутах езды от станций метро "Некрасовка», МЦД ст. Люберцы-1,2. Общее количеством квартир 4 700 шт. и населением более 8 000 человек.
Целевая продажа - под мед. услуги. Доступна беспроцентная рассрочка на 2 года, все подробности по телефону.[#7533405#]
Где находится
Контакты
Имя
Отдел продаж
Телефон
+74951520879
E-mail
info@fsk.ru
Под параметры Вашего помещения подходит 31 ритейлер
Вид деятельности: Продукты питания
Ценовая категория:
- Дисконт
- Ниже среднего
Площадь искомых помещений:
от 250 до 1500 м²
Города присутствия:
Люберцы и ещё 143
Объявления из этого региона
Новости и пресса
30.04.2026
Sokolov, O’Stin и «Золотое Яблоко» подтверждают что доверие становится ключевым драйвером промо в ритейле
По данным аналитического агентства Ex Libris, устойчивое лидерство формируется на пересечении трех параметров: прозрачность цен, понятный клиентский сценарий и сбалансированный ассортимент, сочетающий mass-market и более премиальные предложения [...]






